Проект кирпичного дома «Новые горизонты №1»

от 7752960 тыс.

Проект «Новые горизонты №1» – это индивидуальный жилой дом, выполненный из качественных строительных материалов с учетом современных требований к комфорту и энергоэффективности.

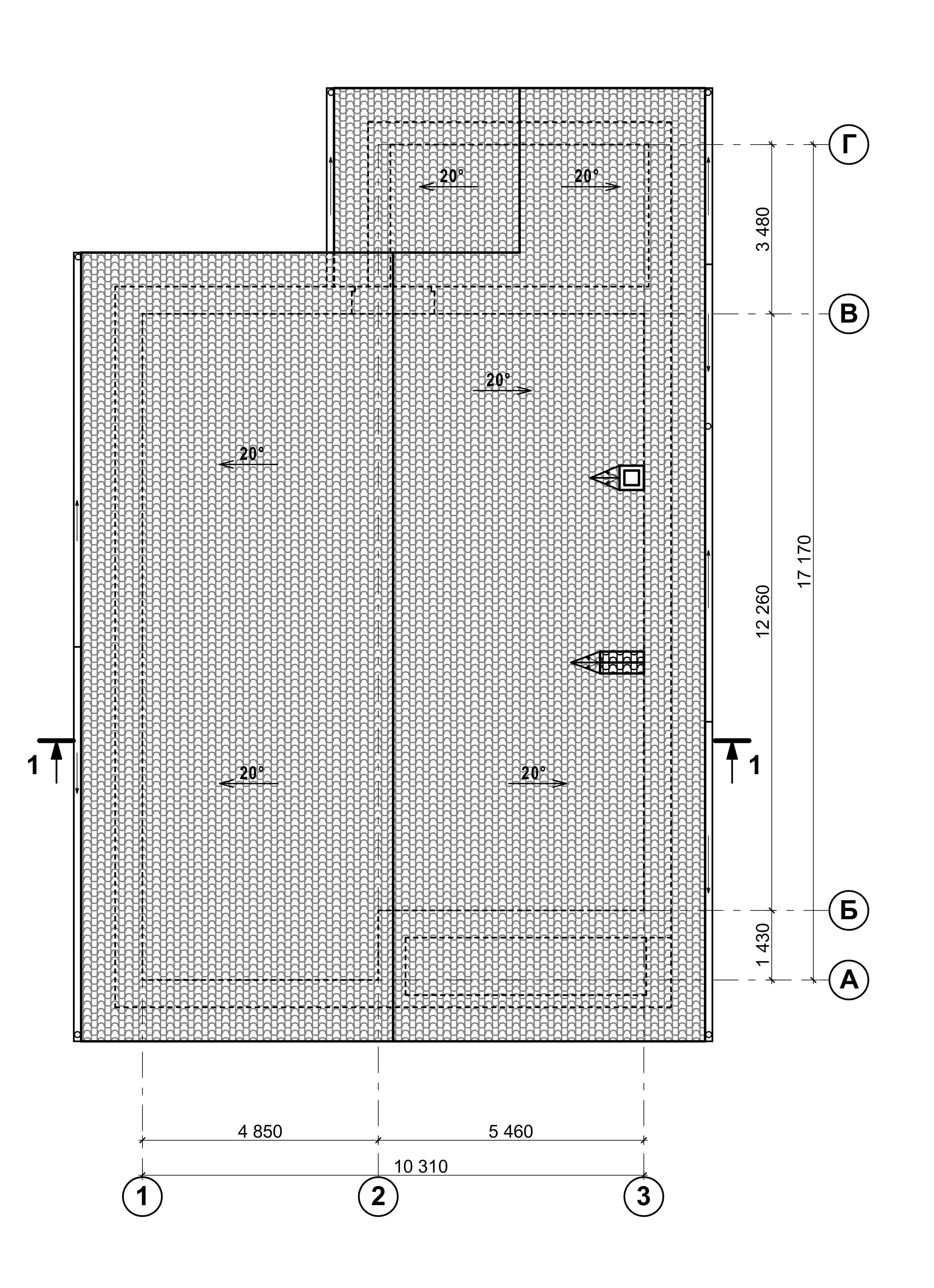
  • Площадь застройки: 203,93 м²
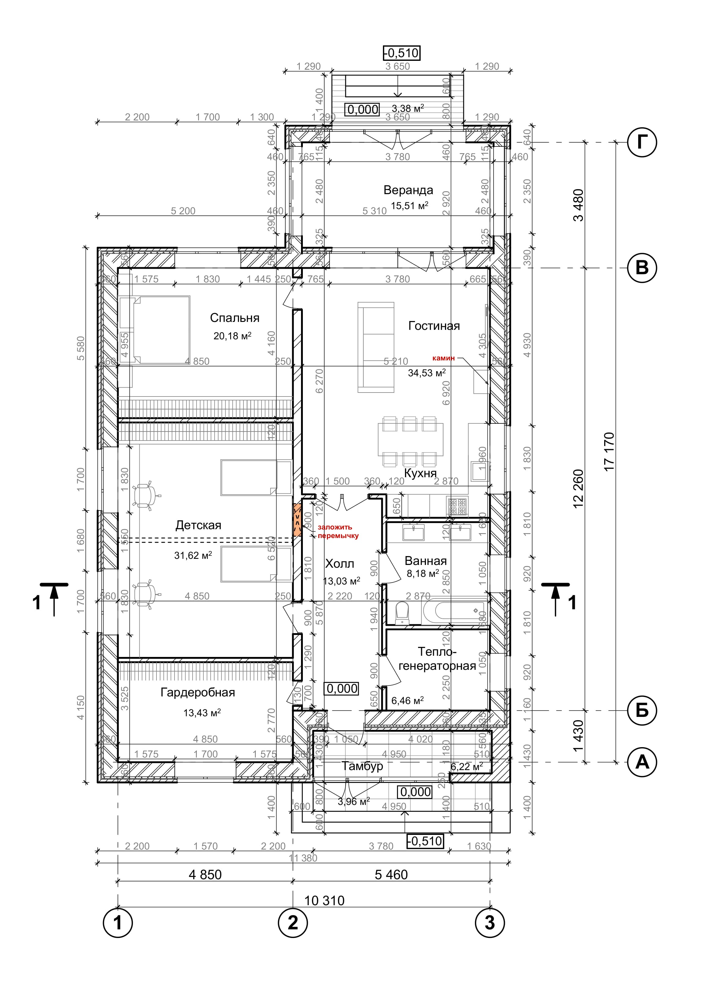
  • Общая площадь жилого дома: 161,52 м²
  • Общая площадь помещений: 149,16 м²
  • Жилая площадь: 75,80 м²
  • Высота потолков: 3,00 м
  • Материал стен: газобетонный блок с утеплителем и облицовочным керамическим кирпичом
  • Крыша: скатная, покрытая металлочерепицей
  • Окна: двухкамерные стеклопакеты (три стекла), ПВХ
  • Отопление: автономное, газовый котел
  • Канализация и водоснабжение: подключены к существующим сетям

Проект «Новые горизонты №1» – это идеальный выбор для семей, которые ценят надежность, долговечность и комфорт. Этот одноэтажный кирпичный дом с просторной и функциональной планировкой сочетает в себе классическую эстетику и современные технологии строительства.

Основные преимущества проекта:

Прочность и долговечность – дом выполнен из газобетонных блоков с облицовочным керамическим кирпичом, что обеспечивает надежность конструкции и отличную теплоизоляцию.
Комфортная планировка – продуманные решения делают дом удобным для жизни: просторная гостиная, отдельные спальни, кухня-столовая, ванная, гардеробная и веранда.
Энергоэффективность – качественные материалы и продуманная конструкция позволяют снизить расходы на отопление и электроэнергию.
Автономное отопление – дом оснащен газовым котлом, обеспечивающим независимость от централизованных сетей и комфортный микроклимат в любое время года.
Современные инженерные системы – водоснабжение, канализация, вентиляция и электроснабжение подключены к существующим поселковым сетям, что гарантирует бесперебойную работу.
Благоустроенный участок – предусмотрены удобные подъездные пути, тротуары и озеленение, а также возможность адаптации территории под индивидуальные нужды заказчика.
Гибкость проекта – мы можем внести изменения в планировку, материалы и инженерные системы в соответствии с вашими пожеланиями.

Проект «Новые горизонты №1» – это не просто дом, а уютное и надежное пространство для вашей семьи. Вы можете оставить заявку по телефону +7 (910) 108-90-98 или написать на rsc-horizont@yandex.ru, и наш менеджер свяжется с вами, чтобы обсудить все детали. Мы имеем многолетний опыт в строительстве кирпичных домов и готовы воплотить в жизнь вашу мечту о комфортном жилье!

Вас также могут заинтересовать...

Проект компактного кирпичного жилого дома «УЮТ»
  Материал: Кирпич
  Площадь: 120,68 м2
от 5792640 руб.
Подробнее →
Проект кирпичного дома «Новые горизонты №5»
  Материал: Кирпич
  Площадь: 169,60 м2
от 8140800 руб.
Подробнее →
Проект кирпичного дома «Новые горизонты №11»
  Материал: Кирпич
  Площадь: 154,3 м2
от 7406400 руб.
Подробнее →
Проект кирпичного дома «Новые горизонты №10»
  Материал: Кирпич
  Площадь: 177,52 м2
от 8520960 руб.
Подробнее →

Оставьте заявку прямо сейчас
и получите бесплатную консультацию!

Оставьте контактные данные и наж менеджер свяжется с вами в течение 5-ти минут!

  Прикрепите фотографии или файлы, если это необходимо

От подачи заявки до готового дома в 4 этапа

01
Оставляете заявку

На сайте или по номеру телефона

02
Назначаем встречу

На которой обсуждаем все ваши пожелания

03
Проектируем

Готовим для вас смету, предложение по цене

04
Заключаем договор

И приступаем к реализации проекта