Проект кирпичного дома «Новые горизонты №10»

от 8520960 тыс.

Проект «Новые горизонты №10» – это двухэтажный кирпичный дом, разработанный для удобства и практичности.

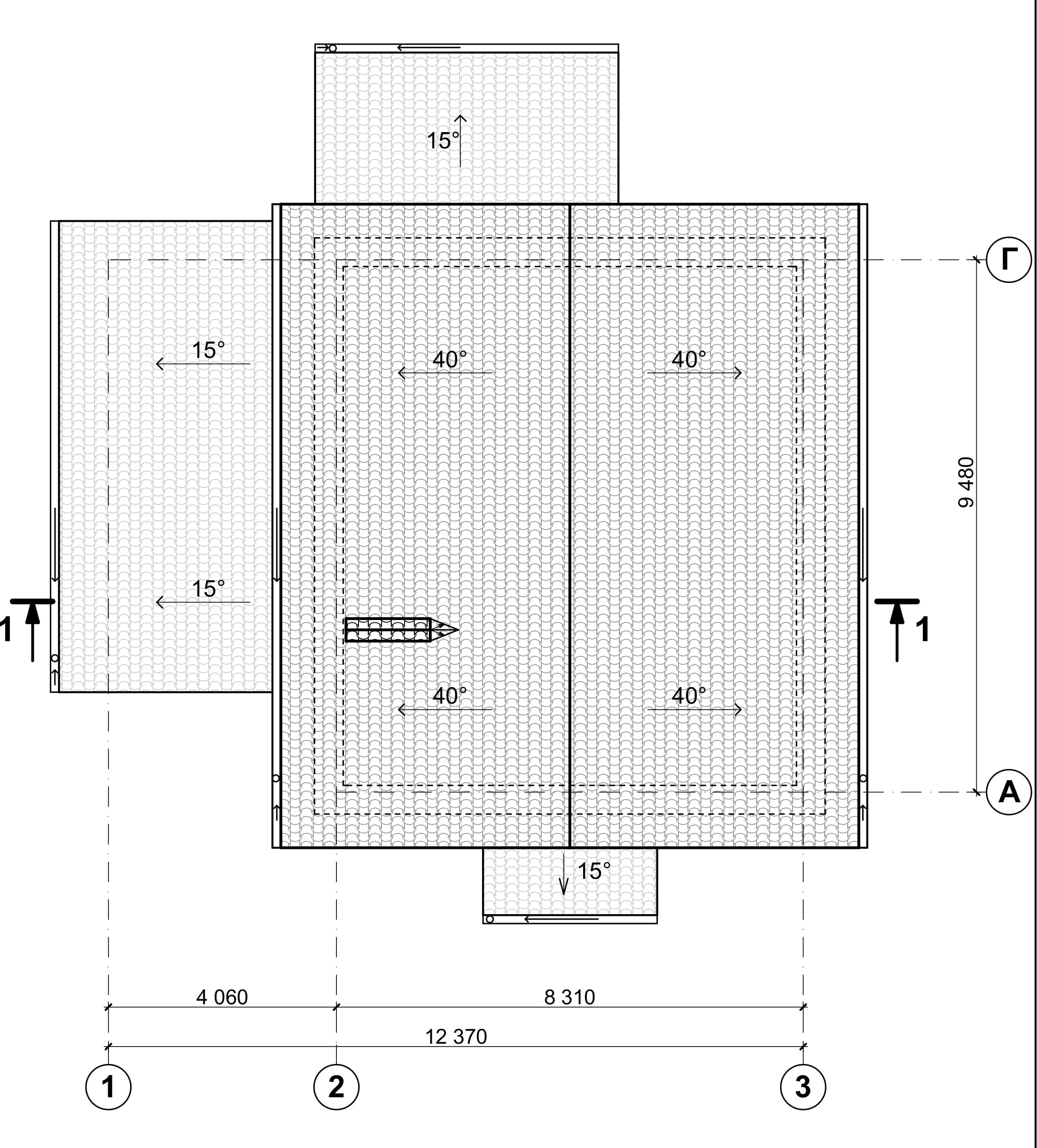
  • Площадь застройки: 143,87 м²
  • Общая площадь здания: 177,52 м²
  • Общая площадь помещений (без террасы и крыльца): 161,18 м²
  • Жилая площадь: 80,21 м²
  • Высота потолков:
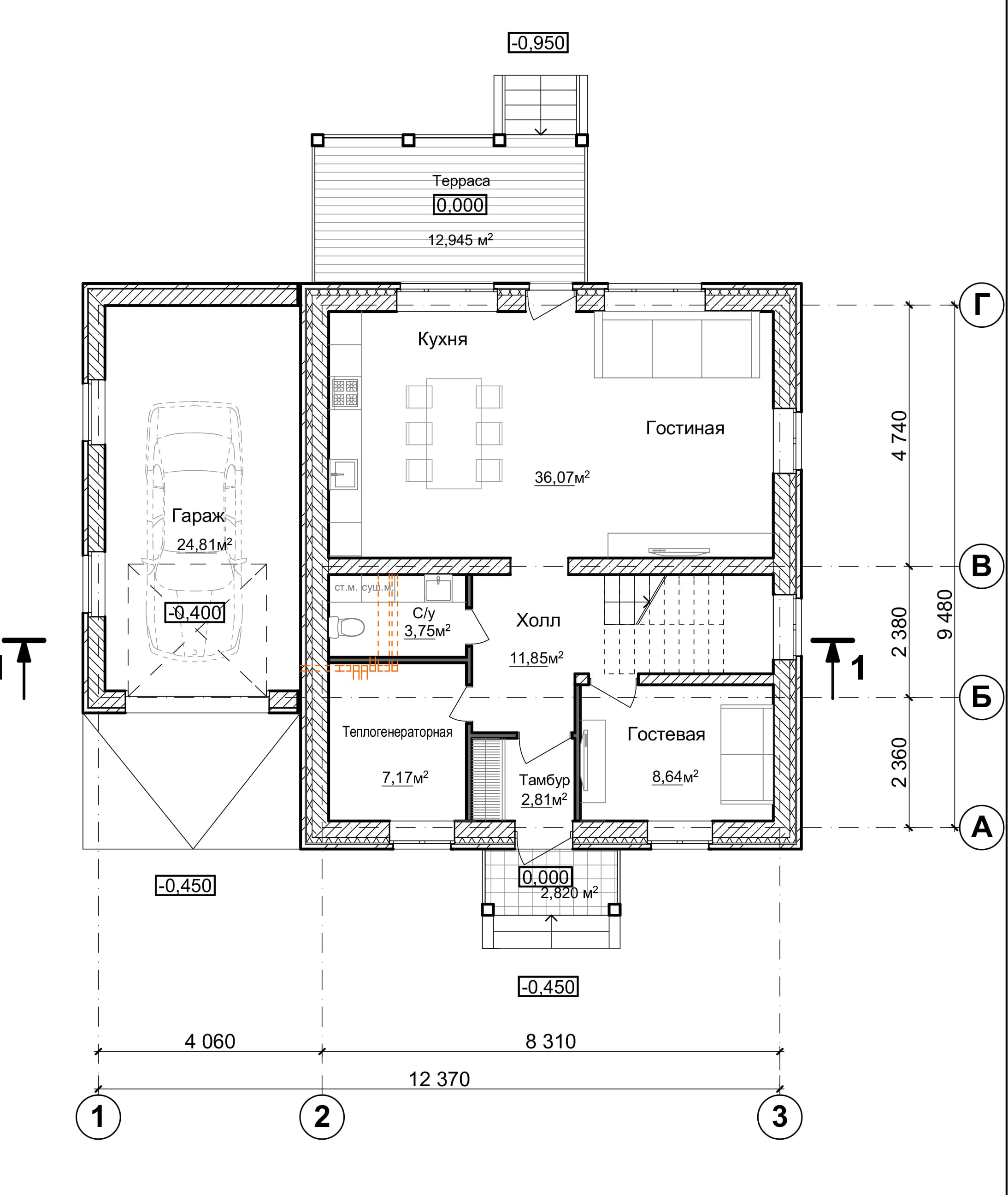
    • 1 этаж – 2,70 м
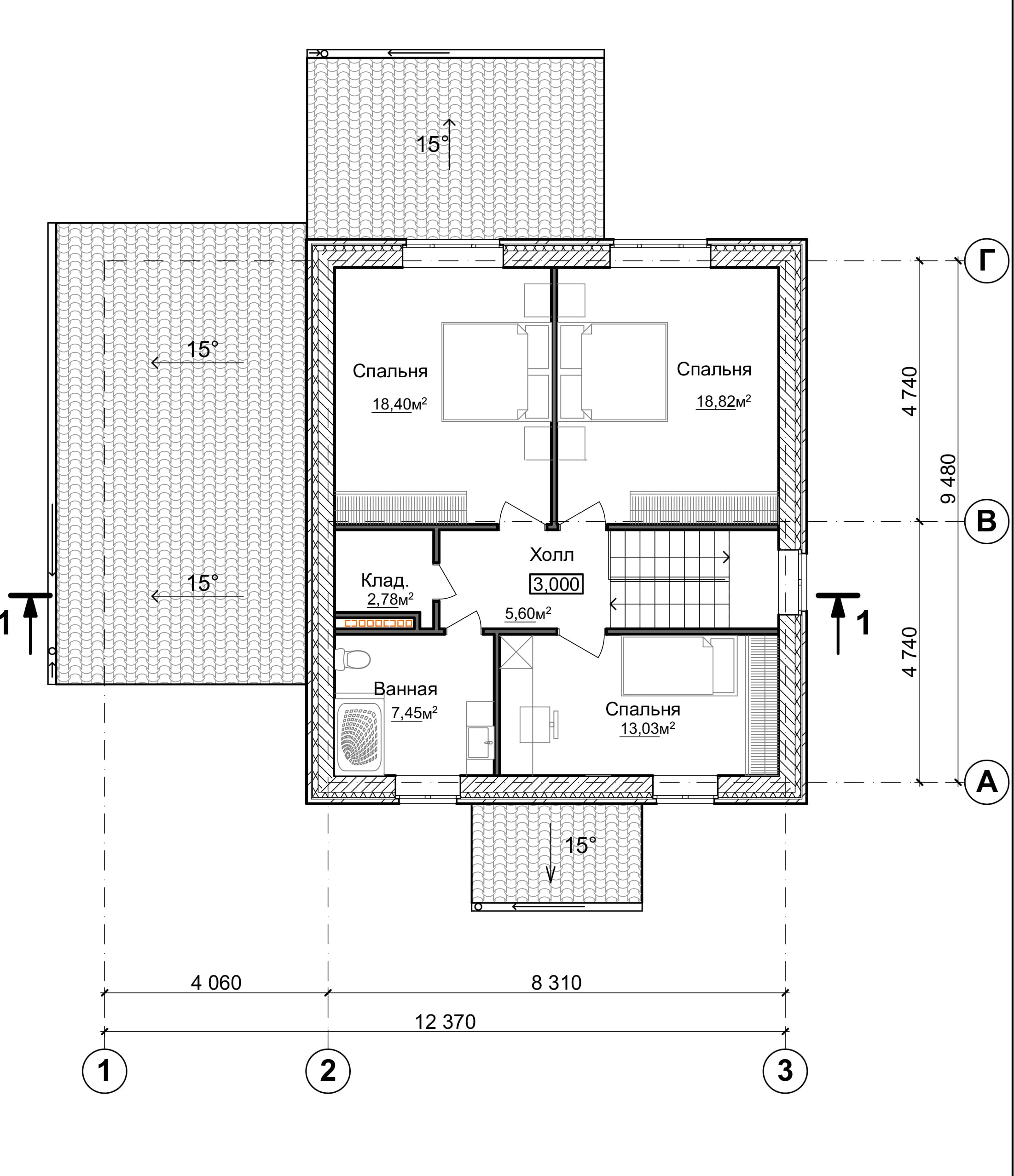
    • 2 этаж – 1,60–2,70 м
  • Материал стен: газосиликатный блок 300 мм с утеплителем 100 мм и облицовкой керамическим кирпичом
  • Фундамент: свайно-ростверковый
  • Крыша: скатная, покрытая металлочерепицей
  • Окна: ПВХ профили, двухкамерные стеклопакеты
  • Отопление: автономное, газовый котел
  • Водоснабжение: из скважины
  • Канализация: автономная, септик с системой биологической очистки
  • Планировка:
    • 1 этаж: гостиная, кухня, столовая, холл, санузел, гараж, теплогенераторная, терраса
    • 2 этаж: три спальни, ванная, холл, кладовая

Проект «Новые горизонты №10» – это современный жилой дом, созданный для комфорта и удобства. Благодаря просторной планировке, он идеально подходит для семейного проживания.

Надежность и качество
Дом построен с применением современных технологий и надежных материалов – газосиликатного блока с утеплением и облицовкой керамическим кирпичом. Это обеспечивает отличную тепло- и шумоизоляцию.

Простор и комфорт
Двухэтажная планировка позволяет рационально использовать жилое пространство: - Первый этаж включает гостиную, кухню, столовую, холл, санузел, гараж и теплогенераторную. - На втором этаже расположены три спальни, ванная, кладовая и просторный холл.

Инженерные системы

  • Отопление и горячее водоснабжение обеспечиваются автономным газовым котлом.
  • Водоснабжение поступает из индивидуальной скважины.
  • Канализация – автономный септик с системой биологической очистки.
  • Электроснабжение осуществляется от поселковой электросети.
  • Приточно-вытяжная вентиляция поддерживает комфортный микроклимат.

Энергоэффективность и безопасность
Дом оснащен современными двухкамерными стеклопакетами, утепленной входной дверью и надежной крышей. Эти решения направлены на снижение теплопотерь и минимизацию затрат на отопление.

Благоустройство и участок
По периметру здания предусмотрена отмостка шириной 1 м, а также возможность озеленения участка по желанию заказчика.

Гибкость проекта
Мы готовы адаптировать проект под ваши индивидуальные пожелания. Наши специалисты помогут скорректировать планировку, добавить инженерные решения и подобрать материалы.

Хотите узнать больше?
Свяжитесь с нами по телефону +7 (910) 108-90-98 или напишите на rsc-horizont@yandex.ru. Мы имеем многолетний опыт в строительстве кирпичных домов и готовы воплотить вашу мечту о комфортном жилье!

Вас также могут заинтересовать...

Проект компактного кирпичного жилого дома «УЮТ»
  Материал: Кирпич
  Площадь: 120,68 м2
от 5792640 руб.
Подробнее →
Проект кирпичного дома «Новые горизонты №5»
  Материал: Кирпич
  Площадь: 169,60 м2
от 8140800 руб.
Подробнее →
Проект кирпичного дома «Новые горизонты №11»
  Материал: Кирпич
  Площадь: 154,3 м2
от 7406400 руб.
Подробнее →
Проект кирпичного дома «Новые горизонты №10»
  Материал: Кирпич
  Площадь: 177,52 м2
от 8520960 руб.
Подробнее →

Оставьте заявку прямо сейчас
и получите бесплатную консультацию!

Оставьте контактные данные и наж менеджер свяжется с вами в течение 5-ти минут!

  Прикрепите фотографии или файлы, если это необходимо

От подачи заявки до готового дома в 4 этапа

01
Оставляете заявку

На сайте или по номеру телефона

02
Назначаем встречу

На которой обсуждаем все ваши пожелания

03
Проектируем

Готовим для вас смету, предложение по цене

04
Заключаем договор

И приступаем к реализации проекта