Проект кирпичного дома «Новые горизонты №11»

от 7406400 тыс.

Проект «Новые горизонты №11» – это современный дом с продуманной планировкой и стильным внешним видом.

  • Площадь застройки: 102,16 м²
  • Общая площадь здания: 154,30 м²
  • Общая площадь помещений (без крыльца): 137,83 м²
  • Жилая площадь: 81,94 м²
  • Высота потолков:
    • 1 этаж – 2,70 м
    • Мансардный этаж – 1,70–2,70 м
  • Материал стен: керамический камень KAIMAN 38 мм с облицовочным керамическим кирпичом
  • Фундамент: ростверковый, на буронабивных сваях
  • Крыша: скатная, покрытая металлочерепицей (RAL 8017)
  • Окна: ПВХ профили с двухкамерными стеклопакетами, коричневый цвет
  • Отопление: автономное, газовый котел
  • Водоснабжение: из скважины
  • Канализация: автономная, септик с системой биологической очистки
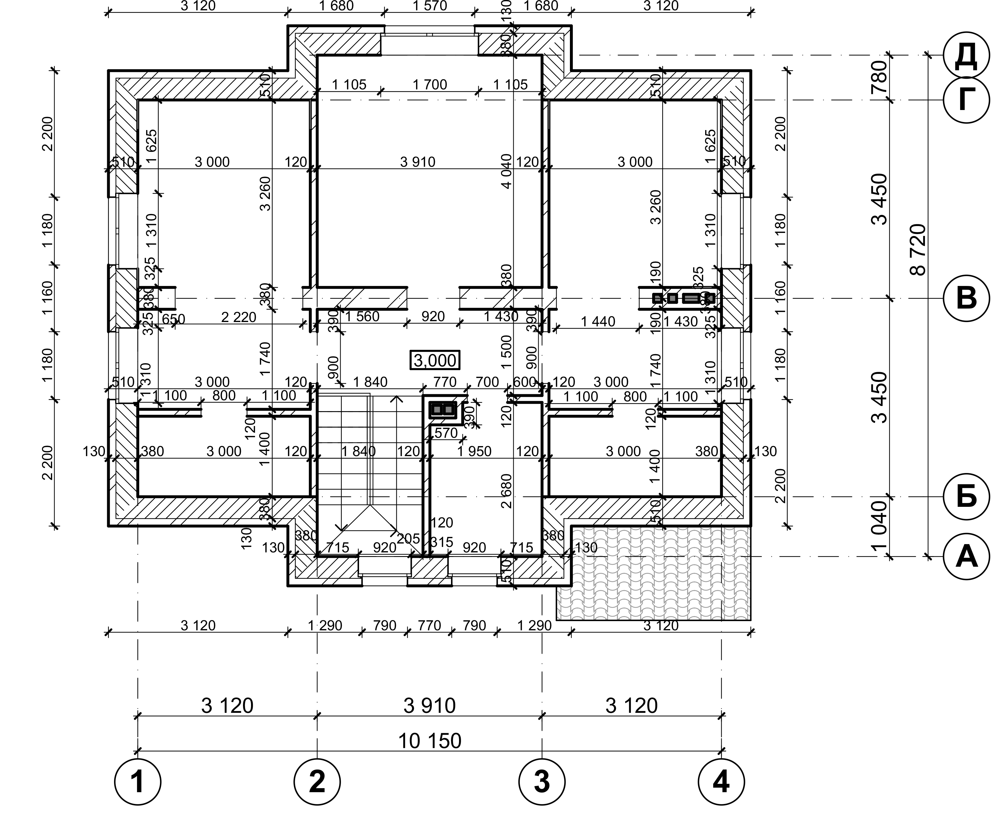
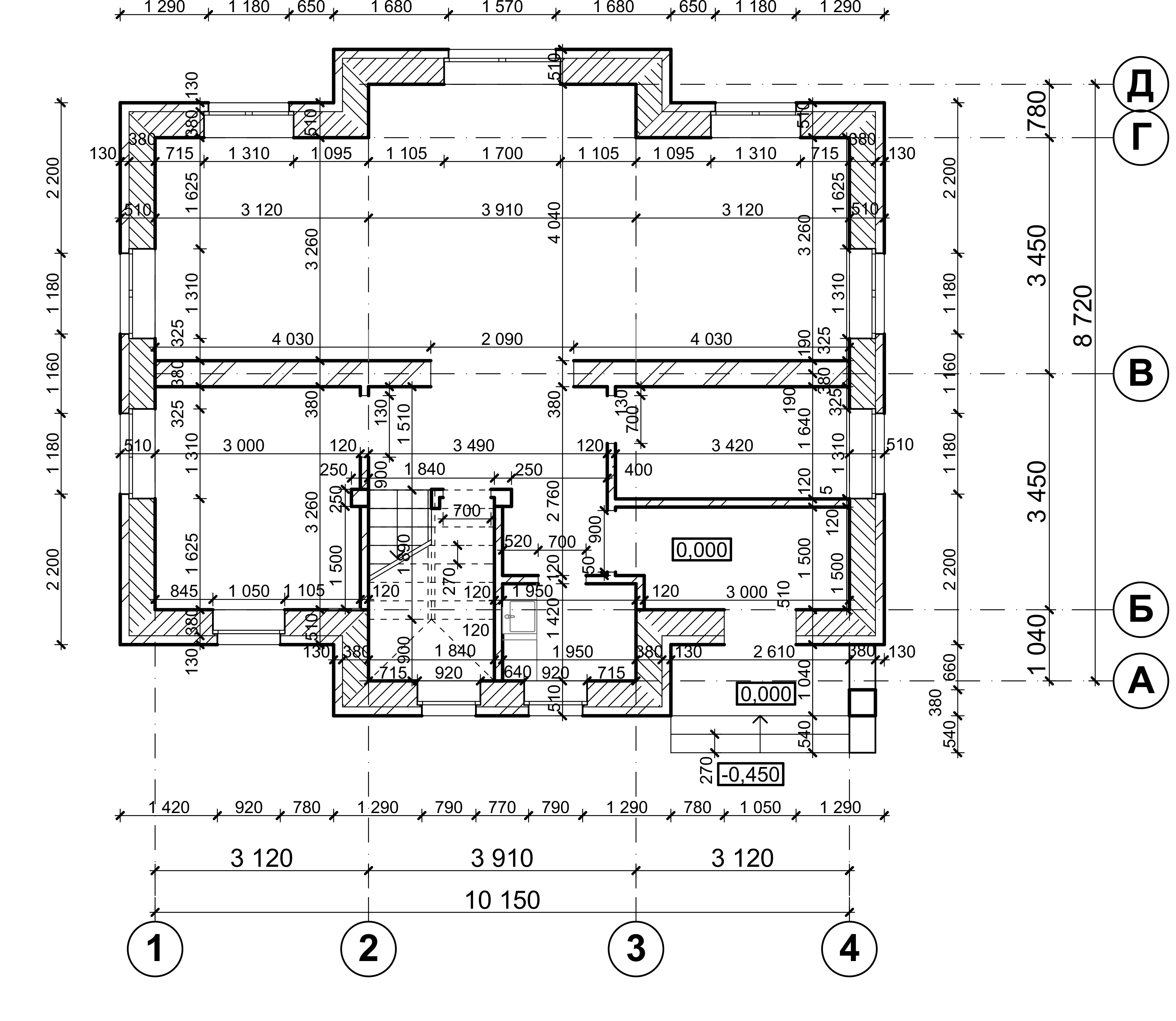
  • Планировка:
    • 1 этаж: гостиная, кухня, гостевая, холл, санузел, гардеробная, теплогенераторная
    • 2 этаж (мансардный): три спальни, ванная, холл, гардеробные

Проект «Новые горизонты №11» – это уютный и практичный дом, который подойдет для комфортного семейного проживания. Современные технологии строительства и качественные материалы обеспечивают надежность и долговечность.

Надежность и качество
Конструкция дома выполнена из керамического камня с облицовкой керамическим кирпичом, что гарантирует высокую теплоизоляцию и устойчивость к внешним воздействиям.

Простор и комфорт
Планировка включает два уровня: - Первый этаж: кухня, гостиная, гостевая комната, санузел, холл, гардеробная, теплогенераторная. - Мансардный этаж: три спальни, ванная комната, гардеробные и просторный холл.

Инженерные системы

  • Отопление и горячее водоснабжение обеспечиваются автономным газовым котлом.
  • Водоснабжение поступает из индивидуальной скважины.
  • Канализация – автономный септик с системой биологической очистки.
  • Электроснабжение осуществляется от поселковой электросети.
  • Приточно-вытяжная вентиляция поддерживает комфортный микроклимат.

Энергоэффективность и безопасность
Дом оснащен современными двухкамерными стеклопакетами, утепленной входной дверью и крышей с надежной деревянной конструкцией. Все решения направлены на снижение теплопотерь и минимизацию затрат на отопление.

Благоустройство и участок
По периметру здания предусмотрена отмостка шириной 1 м, а также возможность озеленения участка по желанию заказчика.

Гибкость проекта
Мы готовы адаптировать проект под ваши индивидуальные пожелания. Наши специалисты помогут скорректировать планировку, добавить инженерные решения и подобрать материалы.

Хотите узнать больше?
Свяжитесь с нами по телефону +7 (910) 108-90-98 или напишите на rsc-horizont@yandex.ru. Мы имеем многолетний опыт в строительстве кирпичных домов и готовы воплотить вашу мечту о комфортном жилье!

Вас также могут заинтересовать...

Проект компактного кирпичного жилого дома «УЮТ»
  Материал: Кирпич
  Площадь: 120,68 м2
от 5792640 руб.
Подробнее →
Проект кирпичного дома «Новые горизонты №5»
  Материал: Кирпич
  Площадь: 169,60 м2
от 8140800 руб.
Подробнее →
Проект кирпичного дома «Новые горизонты №11»
  Материал: Кирпич
  Площадь: 154,3 м2
от 7406400 руб.
Подробнее →
Проект кирпичного дома «Новые горизонты №10»
  Материал: Кирпич
  Площадь: 177,52 м2
от 8520960 руб.
Подробнее →

Оставьте заявку прямо сейчас
и получите бесплатную консультацию!

Оставьте контактные данные и наж менеджер свяжется с вами в течение 5-ти минут!

  Прикрепите фотографии или файлы, если это необходимо

От подачи заявки до готового дома в 4 этапа

01
Оставляете заявку

На сайте или по номеру телефона

02
Назначаем встречу

На которой обсуждаем все ваши пожелания

03
Проектируем

Готовим для вас смету, предложение по цене

04
Заключаем договор

И приступаем к реализации проекта