Проект кирпичного дома «Новые горизонты №2»

от 5964000 тыс.

Проект «Новые горизонты №2» – это современный и функциональный одноэтажный дом, выполненный из качественных строительных материалов.

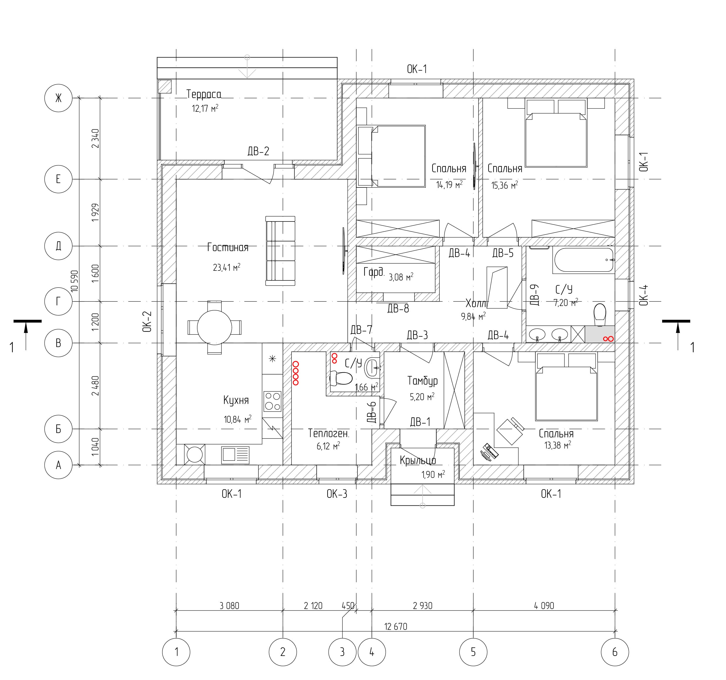
  • Площадь застройки: 160,97 м²
  • Общая площадь здания: 124,35 м²
  • Общая площадь помещений: 110,28 м²
  • Жилая площадь: 66,34 м²
  • Высота потолков: 3,00 м
  • Материал стен: газосиликатные блоки 400 мм с облицовочным фасадным кирпичом
  • Кровля: вальмовая, покрытая металлочерепицей
  • Фундамент: свайно-ростверковый на буронабивных сваях
  • Окна: Exprof Profecta Plus, двухкамерные стеклопакеты
  • Отопление: автономное, газовый котел
  • Водоснабжение: из скважины
  • Канализация: индивидуальная система с герметичным водонепроницаемым выгребом
  • Планировка: гостиная, кухня, три спальни, два санузла, гардеробная, тамбур, крыльцо и терраса

Проект «Новые горизонты №2» разработан для тех, кто ищет уютный, энергоэффективный и надежный дом для семьи. В основе строительства – современные технологии, высокое качество материалов и продуманная планировка.

Надежность и качество
Дом построен из газосиликатных блоков с облицовкой фасадным кирпичом. Такая конструкция обеспечивает отличную теплоизоляцию, устойчивость к внешним воздействиям и долговечность.

Простор и комфорт
Продуманная планировка включает три спальни, большую кухню-гостиную, гардеробную, два санузла, тамбур, крыльцо и террасу. Высокие потолки (3,0 м) создают ощущение простора, а большие окна наполняют помещения естественным светом.

Инженерные системы

  • Отопление и горячее водоснабжение обеспечиваются автономным газовым котлом, что позволяет владельцам регулировать температуру в доме.
  • Водоснабжение поступает из индивидуальной скважины, что гарантирует бесперебойную подачу чистой воды.
  • В доме предусмотрена эффективная вентиляционная система, а канализация выполнена в виде водонепроницаемого выгреба, обеспечивающего экологичность и удобство эксплуатации.

Безопасность и энергоэффективность
Дом оснащен современными двухкамерными стеклопакетами, утепленной входной дверью и качественной кровлей с антисептированной деревянной стропильной системой. Это позволяет минимизировать теплопотери и снизить расходы на отопление.

Благоустройство и участок
По периметру здания предусмотрена отмостка шириной не менее 1 м, а также озеленение участка по желанию заказчика.

Гибкость проекта
Мы готовы внести изменения в планировку и инженерные системы в соответствии с вашими пожеланиями. Наши специалисты помогут адаптировать проект под индивидуальные запросы, обеспечив максимальный комфорт для вашей семьи.

Заинтересовались?
Оставьте заявку по телефону +7 (910) 108-90-98 или напишите на rsc-horizont@yandex.ru, и наш менеджер свяжется с вами, чтобы обсудить детали. Мы имеем многолетний опыт в строительстве и гарантируем высокое качество и профессиональный подход к каждому проекту!

Вас также могут заинтересовать...

Проект компактного кирпичного жилого дома «УЮТ»
  Материал: Кирпич
  Площадь: 120,68 м2
от 5792640 руб.
Подробнее →
Проект кирпичного дома «Новые горизонты №5»
  Материал: Кирпич
  Площадь: 169,60 м2
от 8140800 руб.
Подробнее →
Проект кирпичного дома «Новые горизонты №11»
  Материал: Кирпич
  Площадь: 154,3 м2
от 7406400 руб.
Подробнее →
Проект кирпичного дома «Новые горизонты №10»
  Материал: Кирпич
  Площадь: 177,52 м2
от 8520960 руб.
Подробнее →

Оставьте заявку прямо сейчас
и получите бесплатную консультацию!

Оставьте контактные данные и наж менеджер свяжется с вами в течение 5-ти минут!

  Прикрепите фотографии или файлы, если это необходимо

От подачи заявки до готового дома в 4 этапа

01
Оставляете заявку

На сайте или по номеру телефона

02
Назначаем встречу

На которой обсуждаем все ваши пожелания

03
Проектируем

Готовим для вас смету, предложение по цене

04
Заключаем договор

И приступаем к реализации проекта