Проект кирпичного дома «Новые горизонты №3»

от 4003200 тыс.

Проект «Новые горизонты №3» – это уютный и функциональный жилой дом, разработанный для комфортного проживания.

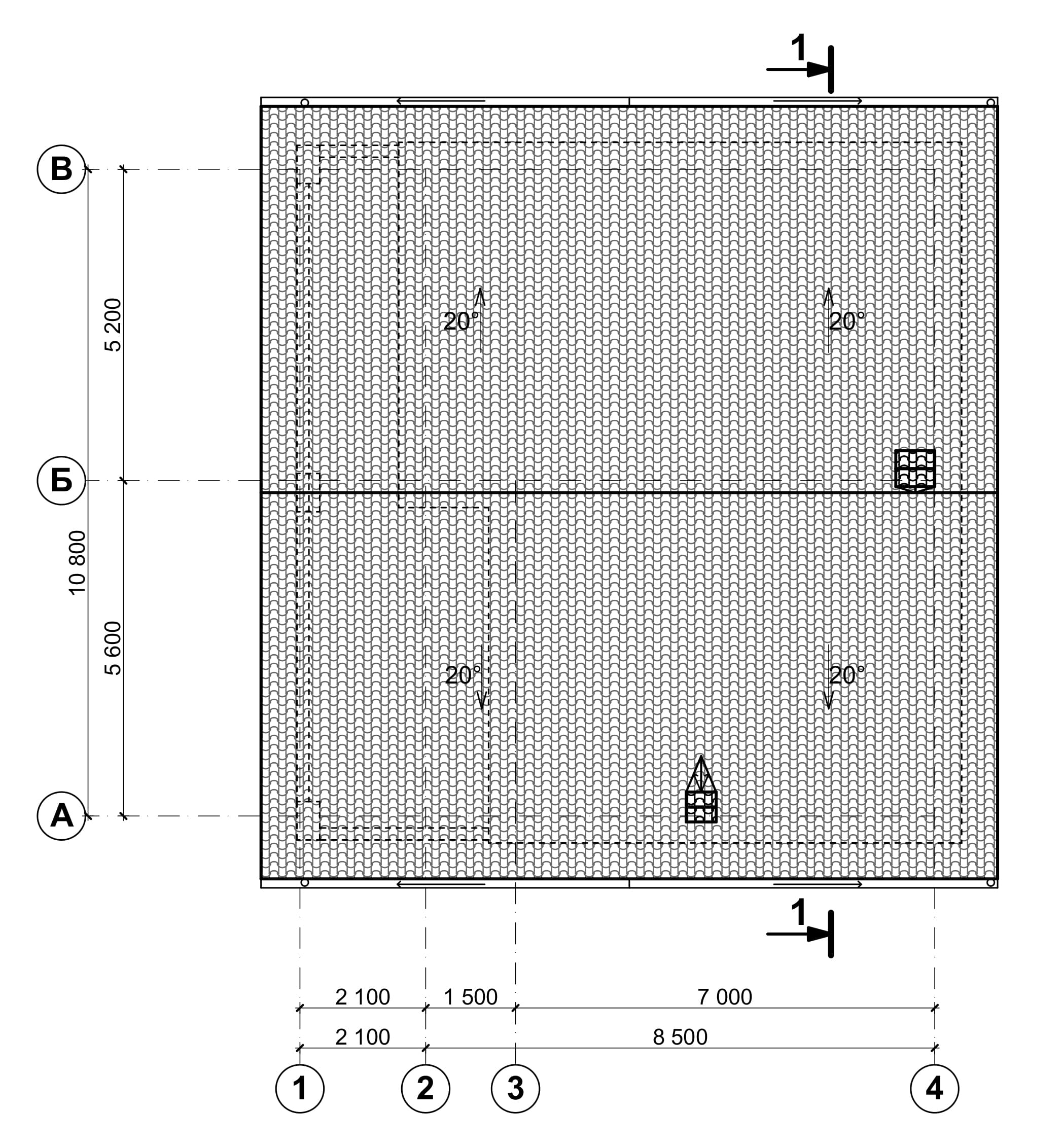
  • Площадь застройки: 130,59 м²
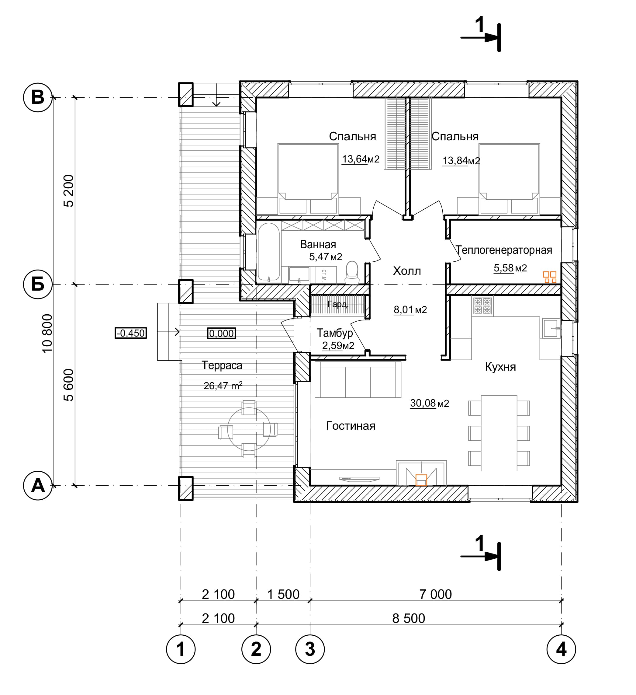
  • Общая площадь жилого дома: 83,40 м²
  • Общая площадь помещений (без террасы): 79,21 м²
  • Жилая площадь: 47,48 м²
  • Высота потолков: 2,70 м
  • Материал стен: газосиликатный блок 400 мм с утеплителем 50 мм
  • Фундамент: мелкозаглубленный ленточный
  • Крыша: скатная, покрытая металлочерепицей
  • Окна: ПВХ REHAU Blitz, двухкамерные стеклопакеты
  • Отопление: автономное, газовый котел
  • Водоснабжение: из скважины
  • Канализация: септик с системой биологической самоочистки
  • Планировка: гостиная, кухня, три спальни, ванная, тамбур, гардеробная, терраса

Проект «Новые горизонты №3» разработан для тех, кто ищет комфортный, энергоэффективный и надежный дом. В основе строительства – современные технологии, качественные материалы и продуманная планировка.

Надежность и качество
Дом построен из газосиликатных блоков с утеплителем и облицовкой декоративной штукатуркой. Такое решение обеспечивает отличную тепло- и шумоизоляцию, устойчивость к внешним воздействиям и долговечность.

Простор и комфорт
Планировка включает три спальни, кухню, гостиную, ванную, гардеробную, тамбур и просторную террасу. Высота потолков 2,70 м создает ощущение уюта и свободы.

Инженерные системы

  • Отопление и горячее водоснабжение от автономного газового котла.
  • Водоснабжение из индивидуальной скважины.
  • Эффективная приточно-вытяжная вентиляция.
  • Канализация – автономная система с биологической очисткой.

Энергоэффективность и безопасность
Дом оснащен качественными двухкамерными стеклопакетами, утепленной входной дверью и скатной кровлей с прочной деревянной конструкцией. Все решения направлены на снижение теплопотерь и экономию на отоплении.

Благоустройство и участок
По периметру дома предусмотрена отмостка шириной 1 м, а также возможность озеленения участка.

Гибкость проекта
Мы можем адаптировать проект под ваши индивидуальные пожелания. Наши специалисты помогут скорректировать планировку, добавить инженерные решения и подобрать материалы.

Хотите узнать больше?
Свяжитесь с нами по телефону +7 (910) 108-90-98 или напишите на rsc-horizont@yandex.ru. Мы имеем многолетний опыт в строительстве кирпичных домов и готовы реализовать вашу мечту о комфортном жилье!

Вас также могут заинтересовать...

Проект компактного кирпичного жилого дома «УЮТ»
  Материал: Кирпич
  Площадь: 120,68 м2
от 5792640 руб.
Подробнее →
Проект кирпичного дома «Новые горизонты №5»
  Материал: Кирпич
  Площадь: 169,60 м2
от 8140800 руб.
Подробнее →
Проект кирпичного дома «Новые горизонты №11»
  Материал: Кирпич
  Площадь: 154,3 м2
от 7406400 руб.
Подробнее →
Проект кирпичного дома «Новые горизонты №10»
  Материал: Кирпич
  Площадь: 177,52 м2
от 8520960 руб.
Подробнее →

Оставьте заявку прямо сейчас
и получите бесплатную консультацию!

Оставьте контактные данные и наж менеджер свяжется с вами в течение 5-ти минут!

  Прикрепите фотографии или файлы, если это необходимо

От подачи заявки до готового дома в 4 этапа

01
Оставляете заявку

На сайте или по номеру телефона

02
Назначаем встречу

На которой обсуждаем все ваши пожелания

03
Проектируем

Готовим для вас смету, предложение по цене

04
Заключаем договор

И приступаем к реализации проекта