Проект кирпичного дома «Новые горизонты №4»

от 5359200 тыс.

Проект «Новые горизонты №4» – это современный жилой дом, разработанный с учетом требований комфорта и долговечности.

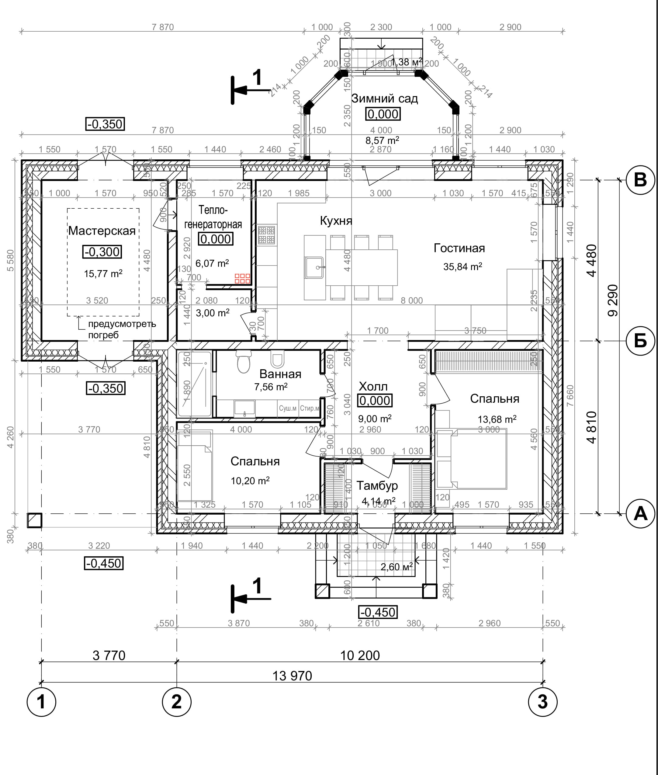
  • Площадь застройки: 156,47 м²
  • Общая площадь здания: 111,65 м²
  • Общая площадь помещений (без крылец): 113,83 м²
  • Жилая площадь: 43,88 м²
  • Высота потолков: 2,70 м
  • Материал стен: силикатный блок 250 мм с утеплителем 150 мм и облицовочным керамическим кирпичом
  • Фундамент: ленточный, мелкозаглубленный
  • Крыша: скатная, покрытая металлочерепицей
  • Окна: двухкамерные стеклопакеты ПВХ
  • Отопление: автономное, газовый котел
  • Водоснабжение: из скважины
  • Канализация: септик с системой биологической очистки
  • Планировка: гостиная, кухня, три спальни, ванная, гардеробная, тамбур, зимний сад, мастерская, теплогенераторная

Проект «Новые горизонты №4» разработан для комфортного и современного проживания. Этот дом сочетает в себе надежность, энергоэффективность и стильные архитектурные решения.

Надежность и качество
Конструкция дома выполнена из прочных материалов: силикатный блок с утеплителем и облицовочным кирпичом. Такой выбор обеспечивает отличную тепло- и шумоизоляцию, устойчивость к внешним воздействиям и долговечность.

Простор и комфорт
Планировка включает три спальни, кухню, гостиную, ванную, гардеробную, зимний сад, мастерскую, теплогенераторную и просторный тамбур. Высокие потолки (2,70 м) создают ощущение свободы и уюта.

Инженерные системы

  • Отопление и горячее водоснабжение обеспечиваются автономным газовым котлом.
  • Водоснабжение поступает из индивидуальной скважины.
  • Канализация – автономная система с биологической очисткой.
  • Электроснабжение подключено к поселковым сетям.
  • Эффективная приточно-вытяжная вентиляция.

Энергоэффективность и безопасность
Дом оснащен современными стеклопакетами, утепленной входной дверью и скатной кровлей с прочной деревянной конструкцией. Это позволяет минимизировать потери тепла и снизить расходы на отопление.

Благоустройство и участок
По периметру дома предусмотрена отмостка шириной 1 м. Озеленение участка выполняется по желанию заказчика.

Гибкость проекта
Мы готовы адаптировать проект под ваши индивидуальные пожелания. Наши специалисты помогут скорректировать планировку, добавить инженерные решения и подобрать материалы.

Хотите узнать больше?
Свяжитесь с нами по телефону +7 (910) 108-90-98 или напишите на rsc-horizont@yandex.ru. Мы имеем многолетний опыт в строительстве кирпичных домов и готовы воплотить вашу мечту о комфортном жилье!

Вас также могут заинтересовать...

Проект компактного кирпичного жилого дома «УЮТ»
  Материал: Кирпич
  Площадь: 120,68 м2
от 5792640 руб.
Подробнее →
Проект кирпичного дома «Новые горизонты №5»
  Материал: Кирпич
  Площадь: 169,60 м2
от 8140800 руб.
Подробнее →
Проект кирпичного дома «Новые горизонты №11»
  Материал: Кирпич
  Площадь: 154,3 м2
от 7406400 руб.
Подробнее →
Проект кирпичного дома «Новые горизонты №10»
  Материал: Кирпич
  Площадь: 177,52 м2
от 8520960 руб.
Подробнее →

Оставьте заявку прямо сейчас
и получите бесплатную консультацию!

Оставьте контактные данные и наж менеджер свяжется с вами в течение 5-ти минут!

  Прикрепите фотографии или файлы, если это необходимо

От подачи заявки до готового дома в 4 этапа

01
Оставляете заявку

На сайте или по номеру телефона

02
Назначаем встречу

На которой обсуждаем все ваши пожелания

03
Проектируем

Готовим для вас смету, предложение по цене

04
Заключаем договор

И приступаем к реализации проекта