Проект кирпичного дома «Новые горизонты №5»

от 8140800 тыс.

Проект «Новые горизонты №5» – это современный жилой дом, созданный для комфортного проживания семьи.

  • Площадь застройки: 120,36 м²
  • Общая площадь здания: 169,60 м²
  • Общая площадь помещений (без крыльца и террасы): 153,67 м²
  • Жилая площадь: 88,01 м²
  • Высота потолков: 2,70 м (на обоих этажах)
  • Материал стен: газосиликатный блок 300 мм с утеплителем 100 мм
  • Фундамент: забивные сваи + ленточный фундамент
  • Крыша: скатная, покрытая металлочерепицей
  • Окна: двухкамерные стеклопакеты ПВХ
  • Отопление: автономное, газовый котел
  • Водоснабжение: подключение к существующим сетям
  • Канализация: подключение к существующим сетям
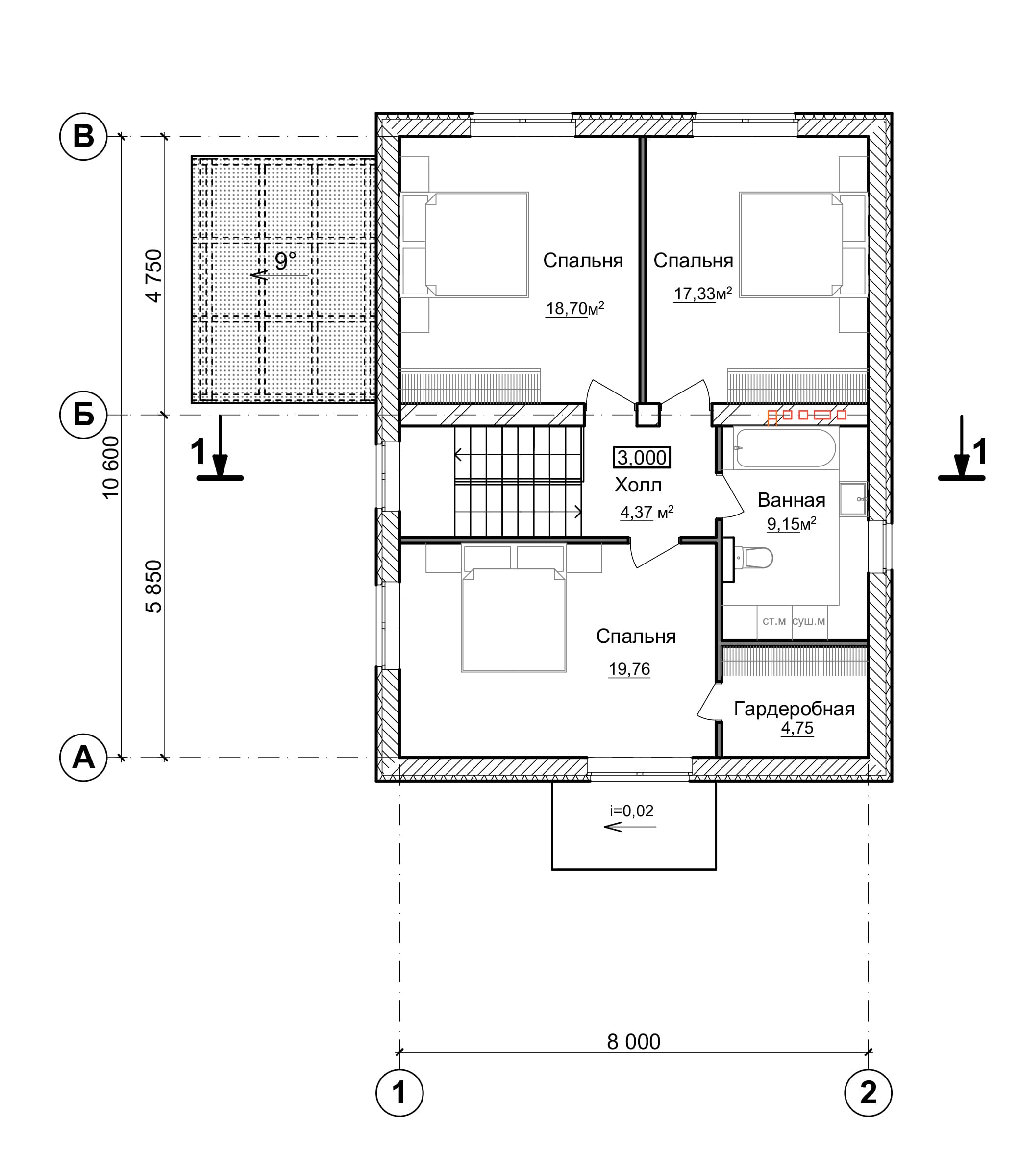
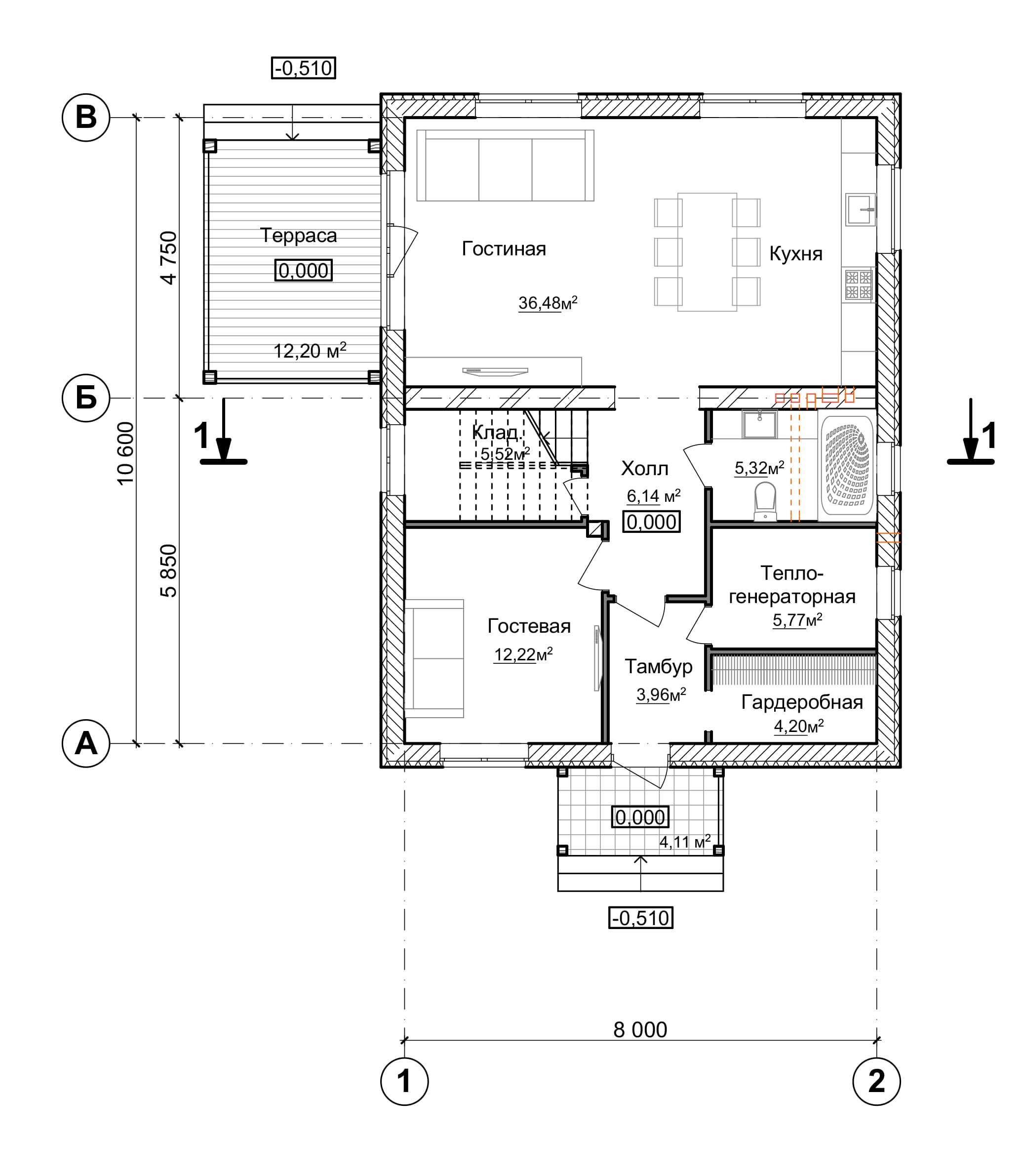
  • Планировка: гостиная, кухня, три спальни, ванная, гардеробная, кладовая, холл, терраса

Проект «Новые горизонты №5» – это просторный и современный дом, идеально подходящий для семейного проживания. Благодаря двухэтажной планировке в доме достаточно места для каждого члена семьи.

Надежность и качество
Конструкция дома выполнена из газосиликатных блоков с утеплителем и облицовочной декоративной штукатуркой. Такой материал обеспечивает высокую тепло- и шумоизоляцию, долговечность и устойчивость к внешним воздействиям.

Простор и комфорт
В доме предусмотрены три просторные спальни, кухня-гостиная, ванная, гардеробная, холл и терраса. Высота потолков 2,70 м создает ощущение свободы и уюта.

Инженерные системы

  • Отопление и горячее водоснабжение обеспечиваются автономным газовым котлом.
  • Водоснабжение подключено к существующим поселковым сетям.
  • Канализация – централизованная.
  • Электроснабжение осуществляется от поселковой электросети.
  • Приточно-вытяжная вентиляция обеспечивает комфортный микроклимат.

Энергоэффективность и безопасность
Дом оснащен качественными двухкамерными стеклопакетами, утепленной входной дверью и крышей с надежной деревянной конструкцией. Эти решения помогают снизить теплопотери и минимизировать затраты на отопление.

Благоустройство и участок
По периметру здания предусмотрена отмостка шириной 1 м. Озеленение участка выполняется по желанию заказчика.

Гибкость проекта
Мы готовы адаптировать проект под ваши индивидуальные пожелания. Наши специалисты помогут скорректировать планировку, добавить инженерные решения и подобрать материалы.

Хотите узнать больше?
Свяжитесь с нами по телефону +7 (910) 108-90-98 или напишите на rsc-horizont@yandex.ru. Мы имеем многолетний опыт в строительстве кирпичных домов и готовы воплотить вашу мечту о комфортном жилье!

Вас также могут заинтересовать...

Проект компактного кирпичного жилого дома «УЮТ»
  Материал: Кирпич
  Площадь: 120,68 м2
от 5792640 руб.
Подробнее →
Проект кирпичного дома «Новые горизонты №5»
  Материал: Кирпич
  Площадь: 169,60 м2
от 8140800 руб.
Подробнее →
Проект кирпичного дома «Новые горизонты №11»
  Материал: Кирпич
  Площадь: 154,3 м2
от 7406400 руб.
Подробнее →
Проект кирпичного дома «Новые горизонты №10»
  Материал: Кирпич
  Площадь: 177,52 м2
от 8520960 руб.
Подробнее →

Оставьте заявку прямо сейчас
и получите бесплатную консультацию!

Оставьте контактные данные и наж менеджер свяжется с вами в течение 5-ти минут!

  Прикрепите фотографии или файлы, если это необходимо

От подачи заявки до готового дома в 4 этапа

01
Оставляете заявку

На сайте или по номеру телефона

02
Назначаем встречу

На которой обсуждаем все ваши пожелания

03
Проектируем

Готовим для вас смету, предложение по цене

04
Заключаем договор

И приступаем к реализации проекта