Проект кирпичного дома «Новые горизонты №6»

от 6706560 тыс.

Проект «Новые горизонты №6» – это двухэтажный кирпичный дом, разработанный с учетом современных стандартов комфорта и надежности.

  • Площадь застройки: 90,15 м²
  • Общая площадь здания: 139,72 м²
  • Общая площадь помещений (без крыльца): 126,90 м²
  • Жилая площадь: 84,46 м²
  • Высота потолков:
    • 1 этаж – 3,00 м
    • 2 этаж – 2,70 м
  • Материал стен: керамический блок 440 мм с облицовкой керамическим кирпичом
  • Фундамент: выполнен согласно геологическому отчету
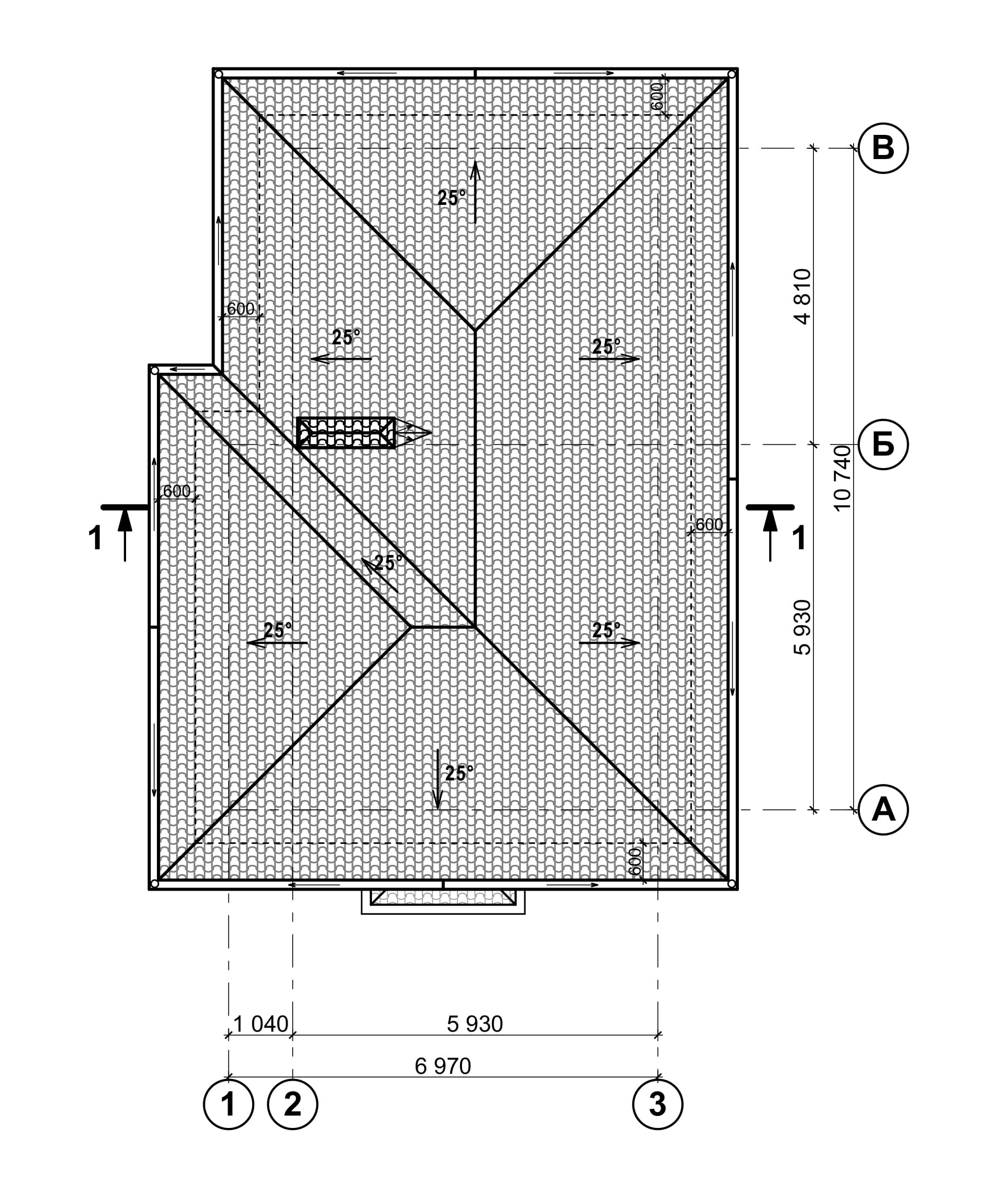
  • Крыша: скатная, покрытая мягкой черепицей
  • Окна: ПВХ REHAU Blitz, двухкамерные стеклопакеты
  • Отопление: автономное, газовый котел
  • Водоснабжение: от существующих городских сетей
  • Канализация: автономная, септик с системой биологической очистки
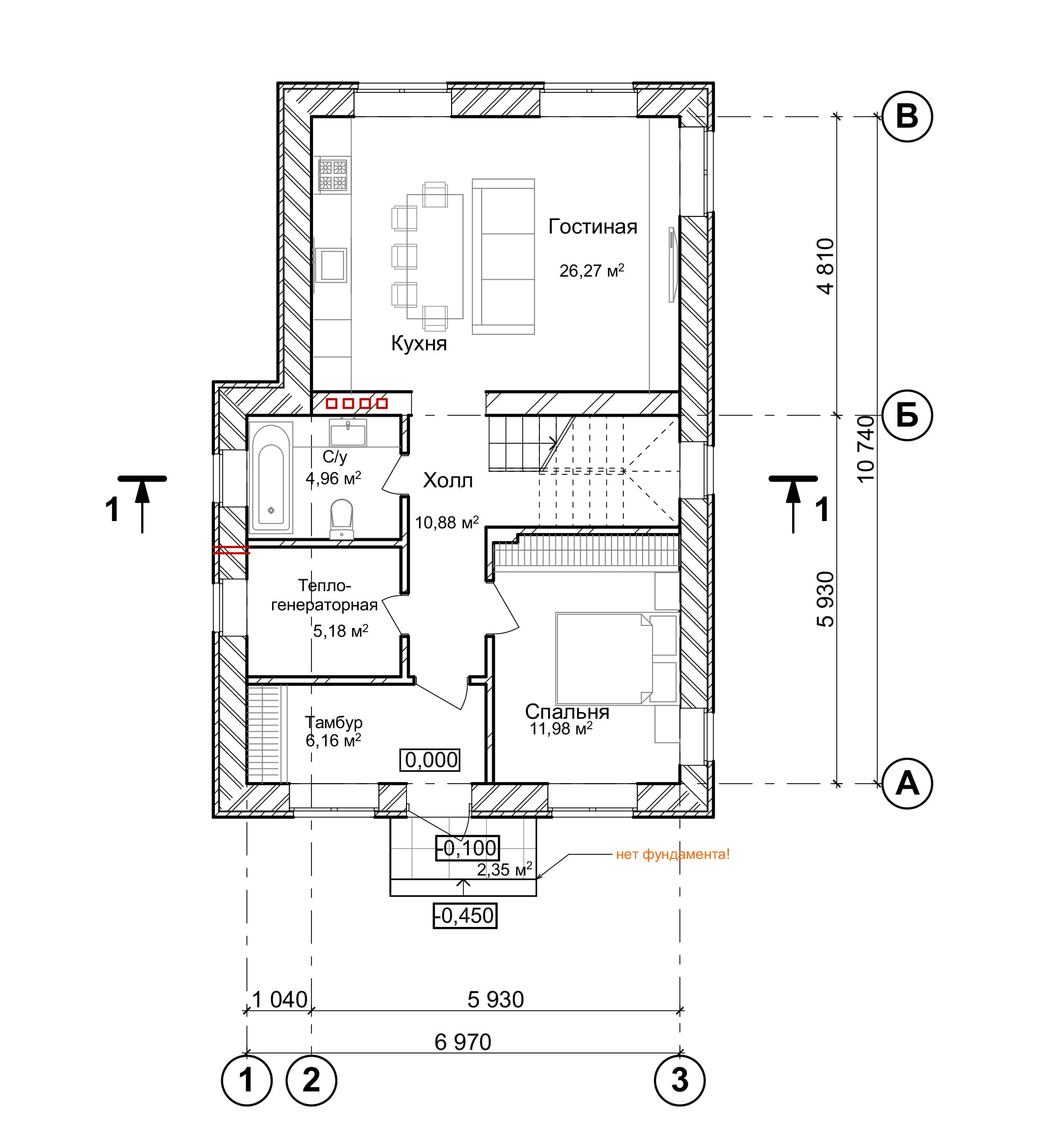
  • Планировка:
    • 1 этаж: гостиная, кухня, спальня, холл, санузел, гардеробная, теплогенераторная
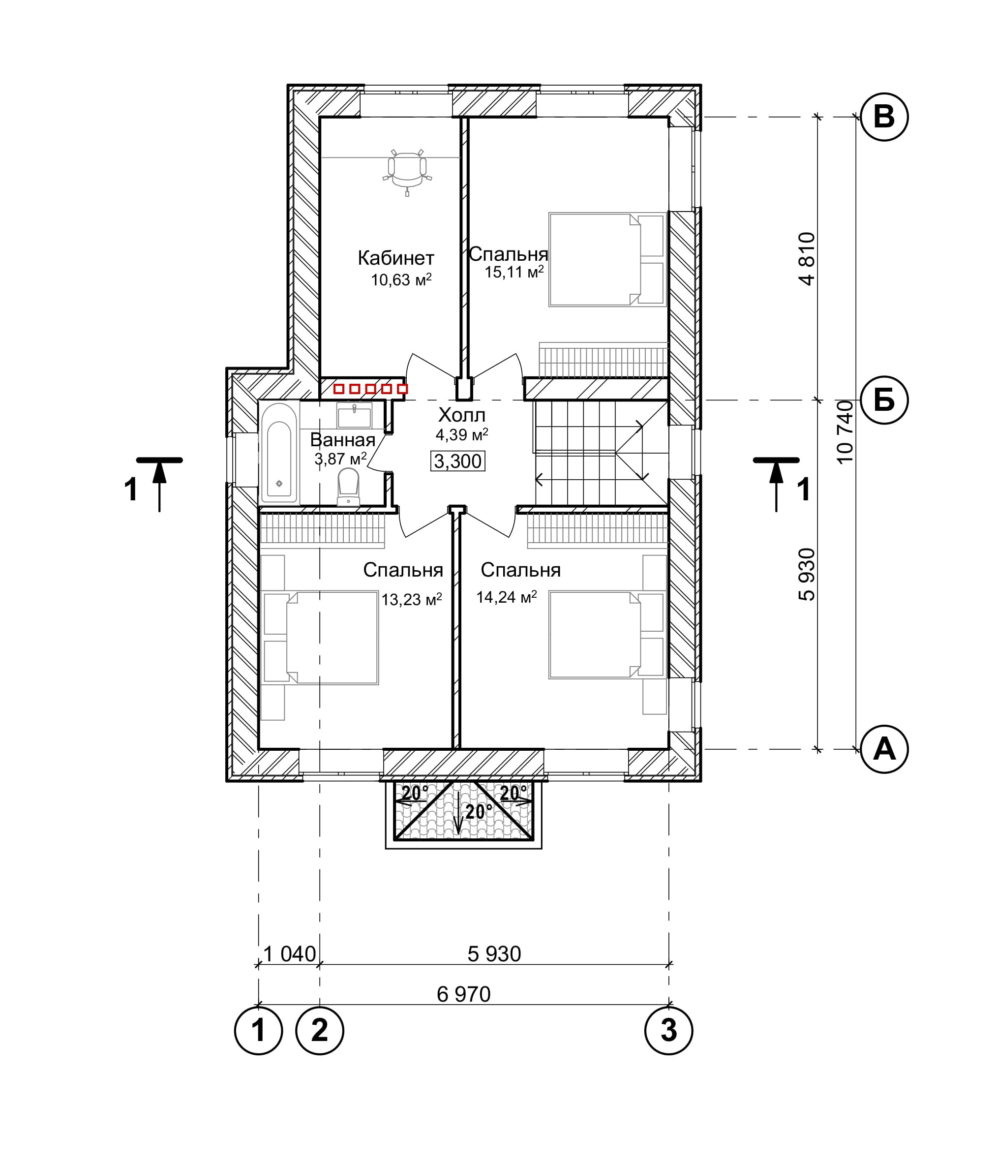
    • 2 этаж: три спальни, кабинет, ванная, холл

Проект «Новые горизонты №6» – это идеальное сочетание современных технологий, качественных строительных материалов и удобной планировки. Этот дом подходит для семей, которые ценят простор и комфорт.

Надежность и качество
Конструкция дома выполнена из керамического блока с облицовкой керамическим кирпичом. Такое решение обеспечивает отличную теплоизоляцию, прочность и долговечность.

Простор и комфорт
Двухэтажная планировка позволяет удобно зонировать пространство: - На первом этаже расположены гостиная, кухня, спальня, санузел, гардеробная и теплогенераторная. - На втором этаже – три спальни, кабинет, ванная и просторный холл.

Инженерные системы

  • Отопление и горячее водоснабжение обеспечиваются автономным газовым котлом.
  • Водоснабжение подключено к городским сетям.
  • Канализация – автономный септик с системой биологической очистки.
  • Электроснабжение – от городской электросети.
  • Приточно-вытяжная вентиляция обеспечивает комфортный микроклимат.

Энергоэффективность и безопасность
Дом оснащен современными двухкамерными стеклопакетами, утепленной входной дверью и мягкой черепицей на крыше. Все решения направлены на снижение теплопотерь и повышение комфорта.

Благоустройство и участок
По периметру здания предусмотрена отмостка шириной 1 м, а также возможность озеленения участка по желанию заказчика.

Гибкость проекта
Мы готовы адаптировать проект под ваши индивидуальные пожелания. Наши специалисты помогут скорректировать планировку, добавить инженерные решения и подобрать материалы.

Хотите узнать больше?
Свяжитесь с нами по телефону +7 (910) 108-90-98 или напишите на rsc-horizont@yandex.ru. Мы имеем многолетний опыт в строительстве кирпичных домов и готовы воплотить вашу мечту о комфортном жилье!

Вас также могут заинтересовать...

Проект компактного кирпичного жилого дома «УЮТ»
  Материал: Кирпич
  Площадь: 120,68 м2
от 5792640 руб.
Подробнее →
Проект кирпичного дома «Новые горизонты №5»
  Материал: Кирпич
  Площадь: 169,60 м2
от 8140800 руб.
Подробнее →
Проект кирпичного дома «Новые горизонты №11»
  Материал: Кирпич
  Площадь: 154,3 м2
от 7406400 руб.
Подробнее →
Проект кирпичного дома «Новые горизонты №10»
  Материал: Кирпич
  Площадь: 177,52 м2
от 8520960 руб.
Подробнее →

Оставьте заявку прямо сейчас
и получите бесплатную консультацию!

Оставьте контактные данные и наж менеджер свяжется с вами в течение 5-ти минут!

  Прикрепите фотографии или файлы, если это необходимо

От подачи заявки до готового дома в 4 этапа

01
Оставляете заявку

На сайте или по номеру телефона

02
Назначаем встречу

На которой обсуждаем все ваши пожелания

03
Проектируем

Готовим для вас смету, предложение по цене

04
Заключаем договор

И приступаем к реализации проекта