Проект кирпичного дома «Новые горизонты №7»

от 7156800 тыс.

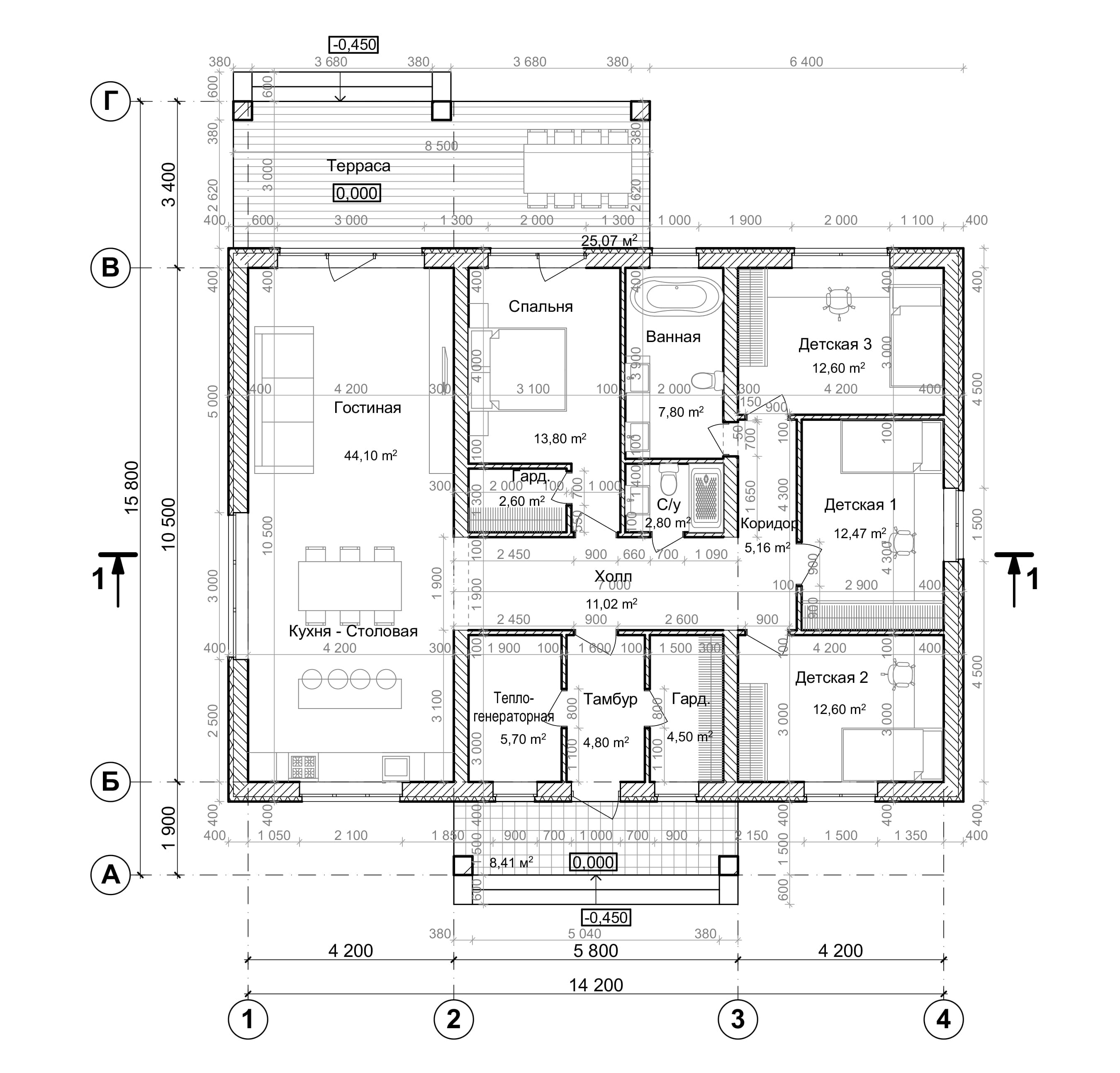
Проект «Новые горизонты №7» – это современный и стильный дом, который обеспечит комфортное проживание благодаря продуманной планировке и качественным строительным решениям.

  • Площадь застройки: 209,84 м²
  • Общая площадь здания: 149,10 м²
  • Общая площадь помещений (без крыльца и террасы): 139,95 м²
  • Жилая площадь: 74,57 м²
  • Высота потолков: 3,00 м
  • Материал стен: газосиликатный блок 300 мм с утеплителем 100 мм и облицовкой декоративной штукатуркой
  • Фундамент: свайно-ростверковый
  • Крыша: скатная, покрытая мягкой черепицей
  • Окна: ПВХ REHAU Blitz, двухкамерные стеклопакеты
  • Отопление: автономное, газовый котел
  • Водоснабжение: из скважины
  • Канализация: автономная, септик с системой биологической очистки
  • Планировка: просторная гостиная, кухня-столовая, три спальни, ванная, санузел, гардеробные, холл, теплогенераторная, терраса

Проект «Новые горизонты №7» – это современное и надежное решение для комфортного проживания. Просторная планировка, энергоэффективные технологии и качественные материалы обеспечивают удобство и долговечность.

Надежность и качество
Дом построен из газосиликатных блоков с утеплителем и облицовкой декоративной штукатуркой. Такая конструкция обеспечивает надежную тепло- и шумоизоляцию, устойчивость к внешним воздействиям и долговечность.

Простор и комфорт
В доме предусмотрены три спальни, просторная кухня-столовая, гостиная, ванная, санузел, гардеробные и теплогенераторная. Высота потолков 3,00 м создает ощущение свободы и уюта.

Инженерные системы

  • Отопление и горячее водоснабжение обеспечиваются автономным газовым котлом.
  • Водоснабжение поступает из индивидуальной скважины.
  • Канализация – автономный септик с системой биологической очистки.
  • Электроснабжение – от поселковой электросети.
  • Приточно-вытяжная вентиляция поддерживает комфортный микроклимат.

Энергоэффективность и безопасность
Дом оснащен современными двухкамерными стеклопакетами, утепленной входной дверью и надежной крышей. Все решения направлены на минимизацию теплопотерь и экономию на отоплении.

Благоустройство и участок
По периметру здания предусмотрена отмостка шириной 1 м, а также возможность озеленения участка по желанию заказчика.

Гибкость проекта
Мы можем адаптировать проект под ваши индивидуальные пожелания. Наши специалисты помогут скорректировать планировку, добавить инженерные решения и подобрать материалы.

Хотите узнать больше?
Свяжитесь с нами по телефону +7 (910) 108-90-98 или напишите на rsc-horizont@yandex.ru. Мы имеем многолетний опыт в строительстве кирпичных домов и готовы воплотить вашу мечту о комфортном жилье!

Вас также могут заинтересовать...

Проект компактного кирпичного жилого дома «УЮТ»
  Материал: Кирпич
  Площадь: 120,68 м2
от 5792640 руб.
Подробнее →
Проект кирпичного дома «Новые горизонты №5»
  Материал: Кирпич
  Площадь: 169,60 м2
от 8140800 руб.
Подробнее →
Проект кирпичного дома «Новые горизонты №11»
  Материал: Кирпич
  Площадь: 154,3 м2
от 7406400 руб.
Подробнее →
Проект кирпичного дома «Новые горизонты №10»
  Материал: Кирпич
  Площадь: 177,52 м2
от 8520960 руб.
Подробнее →

Оставьте заявку прямо сейчас
и получите бесплатную консультацию!

Оставьте контактные данные и наж менеджер свяжется с вами в течение 5-ти минут!

  Прикрепите фотографии или файлы, если это необходимо

От подачи заявки до готового дома в 4 этапа

01
Оставляете заявку

На сайте или по номеру телефона

02
Назначаем встречу

На которой обсуждаем все ваши пожелания

03
Проектируем

Готовим для вас смету, предложение по цене

04
Заключаем договор

И приступаем к реализации проекта