Проект «Новые горизонты №8» – это современный двухэтажный дом, разработанный для удобства и комфорта.
- Площадь застройки: 194,67 м²
- Общая площадь здания: 344,63 м²
- Общая площадь помещений (без крыльца): 251,86 м²
- Жилая площадь: 110,85 м²
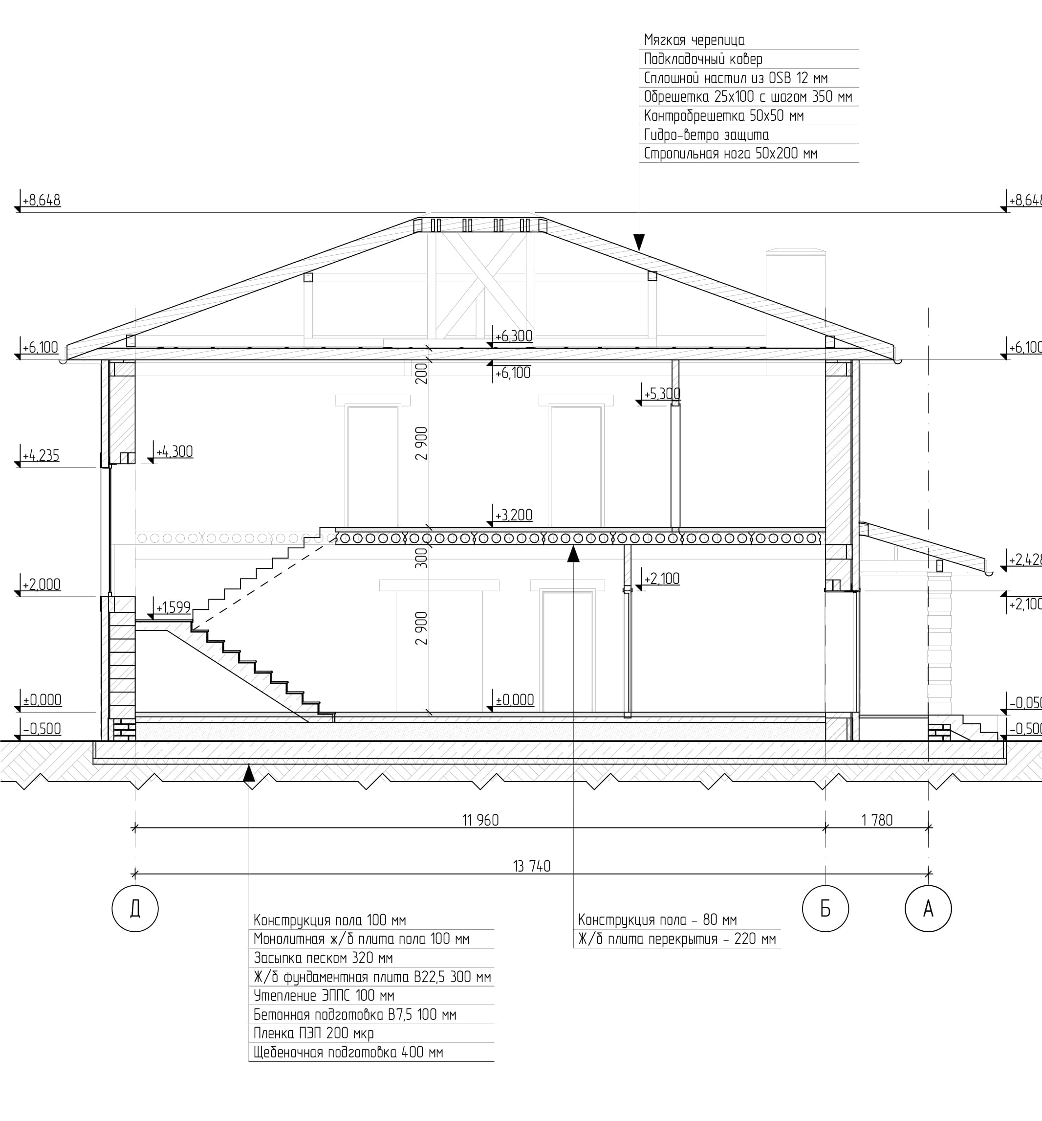
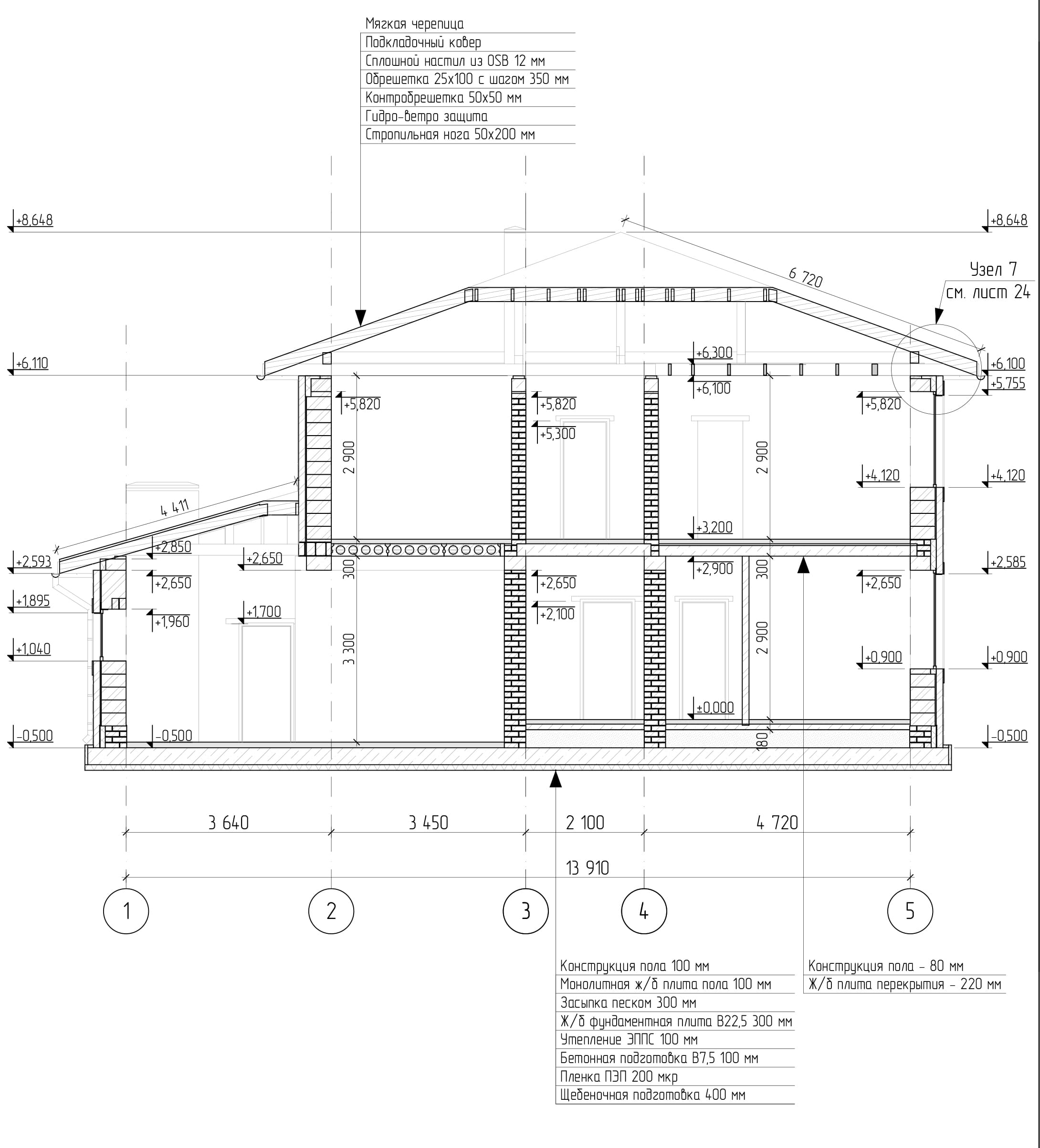
- Высота потолков:
- 1 этаж – 2,90 м
- 2 этаж – 2,90 м
- Материал стен: керамический блок 440 мм с облицовкой фасадным кирпичом
- Фундамент: монолитная железобетонная плита 300 мм
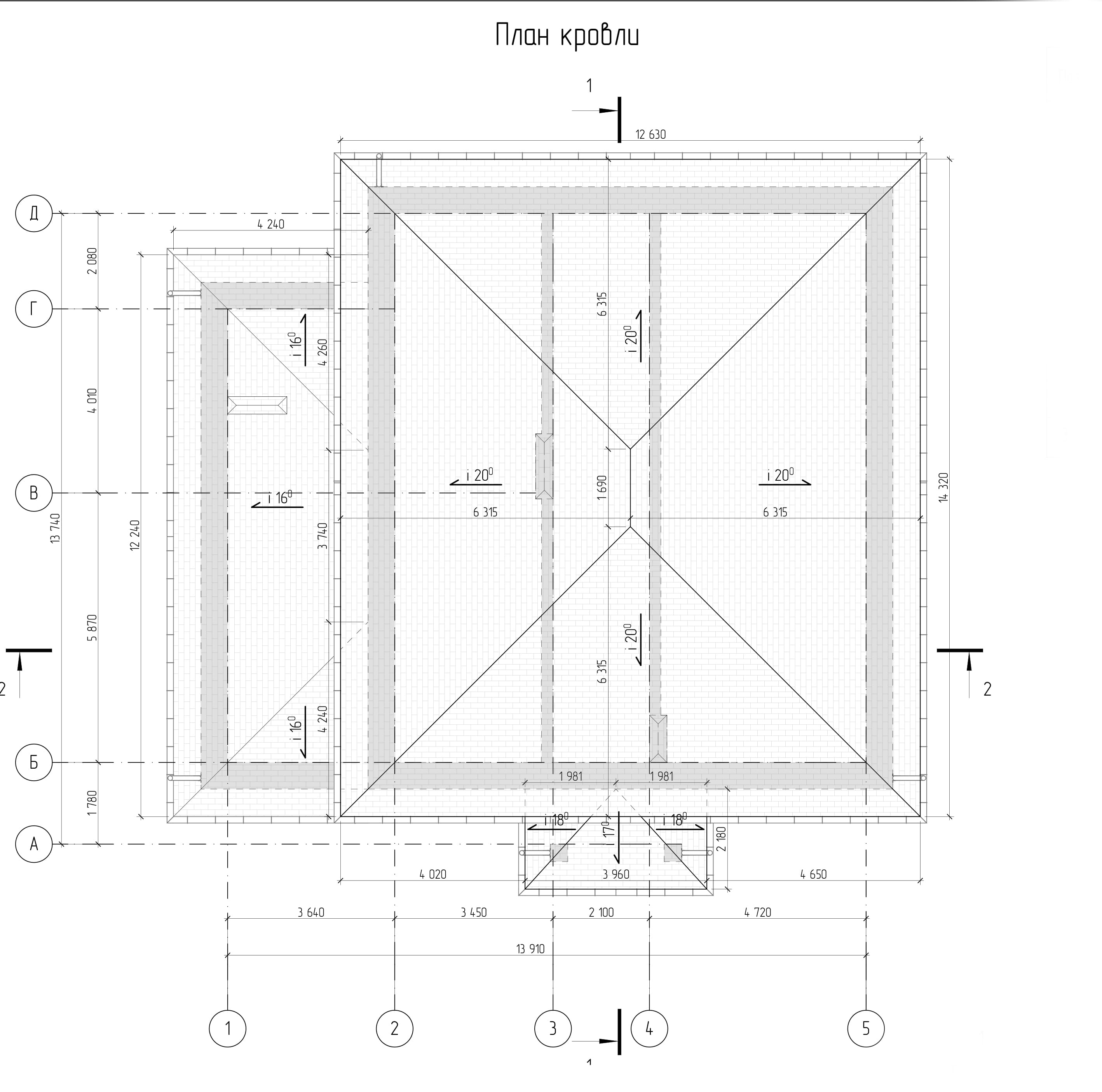
- Крыша: вальмовая, покрытая мягкой черепицей
- Окна: Exprof Profecta Plus 70 мм, двухкамерные стеклопакеты
- Отопление: автономное, газовый котел
- Водоснабжение: из скважины
- Канализация: автономная, водонепроницаемый выгреб
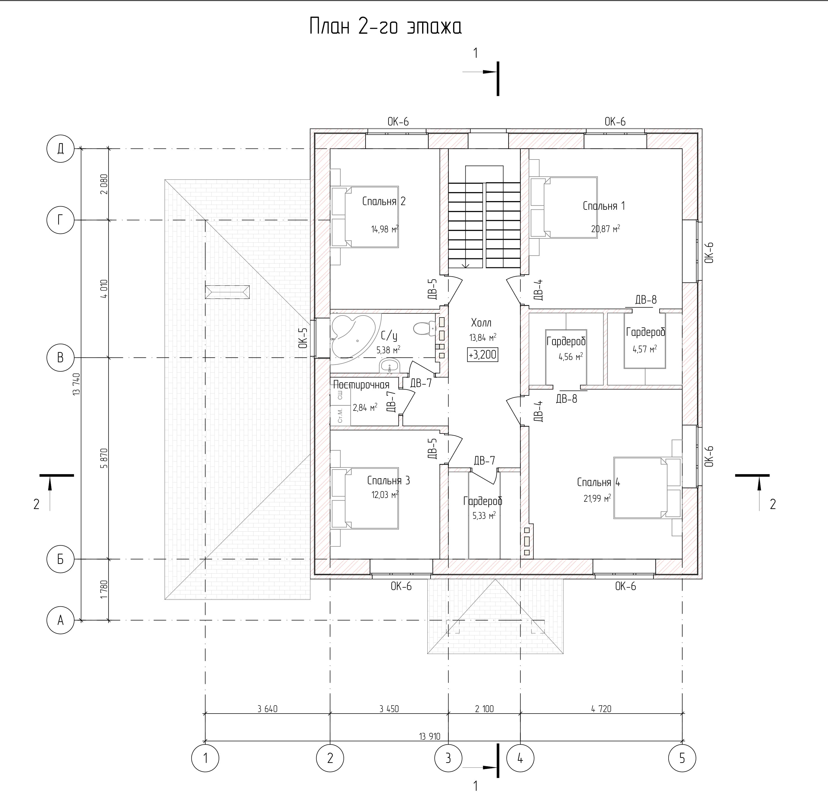
- Планировка:
- 1 этаж: гостиная, кухня, кабинет, кладовая, холл, санузел, гараж на 2 авто, теплогенераторная
- 2 этаж: 4 спальни, 3 гардероба, холл, ванная, постирочная












