Проект кирпичного дома «Новые горизонты №9»

от 11059200 тыс.

Проект «Новые горизонты №9» – это современный жилой дом, который сочетает удобство и функциональность.

  • Площадь застройки: 182,61 м²
  • Общая площадь здания: 230,40 м²
  • Общая площадь помещений (без террасы и крыльца): 216,45 м²
  • Жилая площадь: 82,53 м²
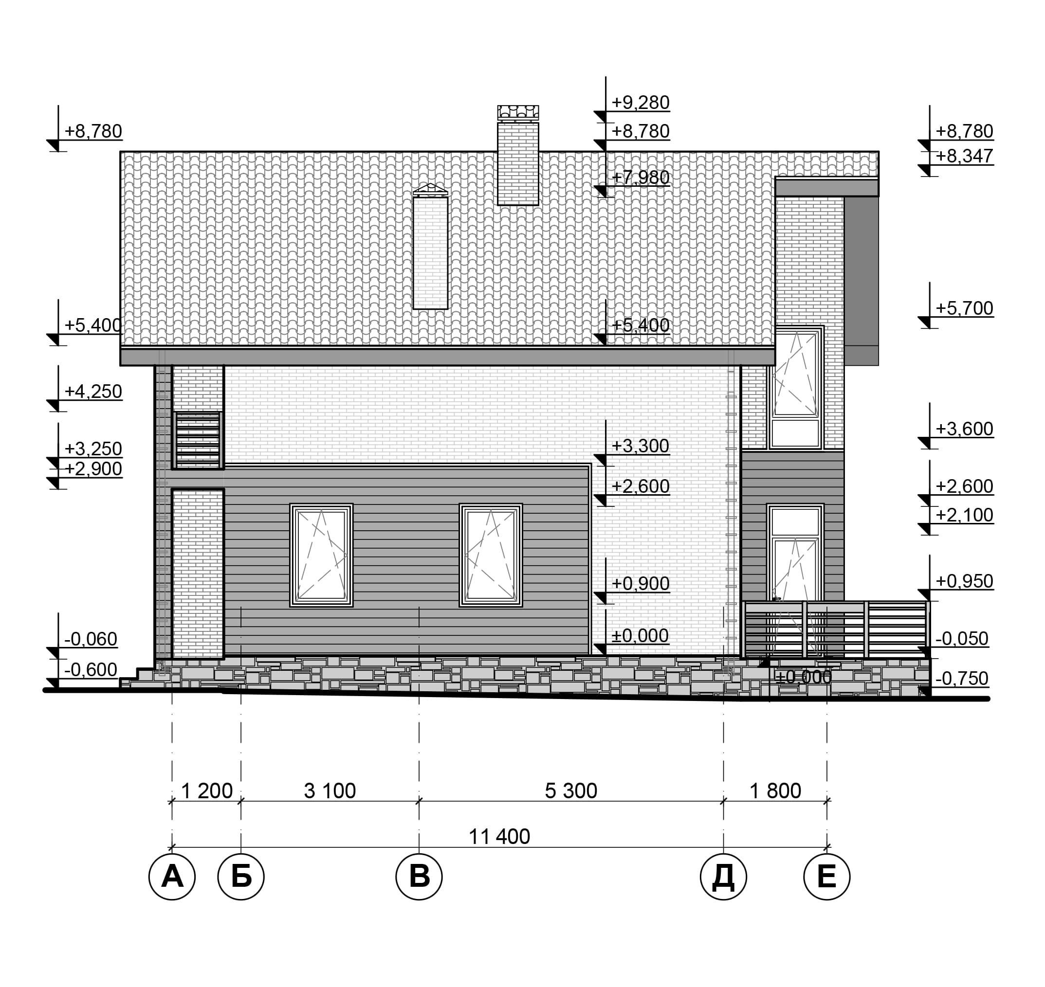
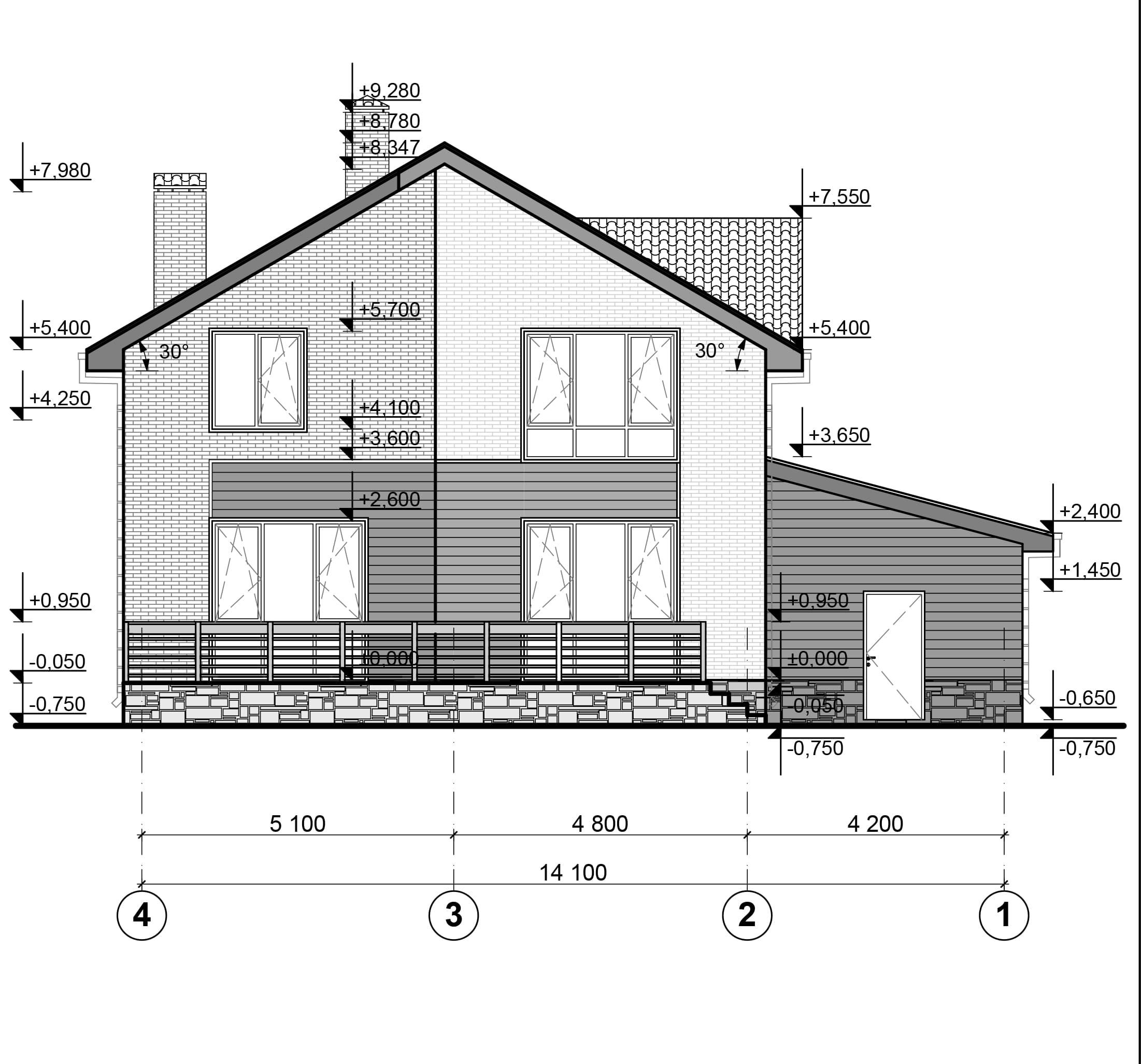
  • Высота потолков:
    • 1 этаж – 3,00 м
    • 2 этаж – 2,10–2,70 м
  • Материал стен: деревянный каркас с минераловатным утеплителем
  • Фундамент: свайный с ростверком
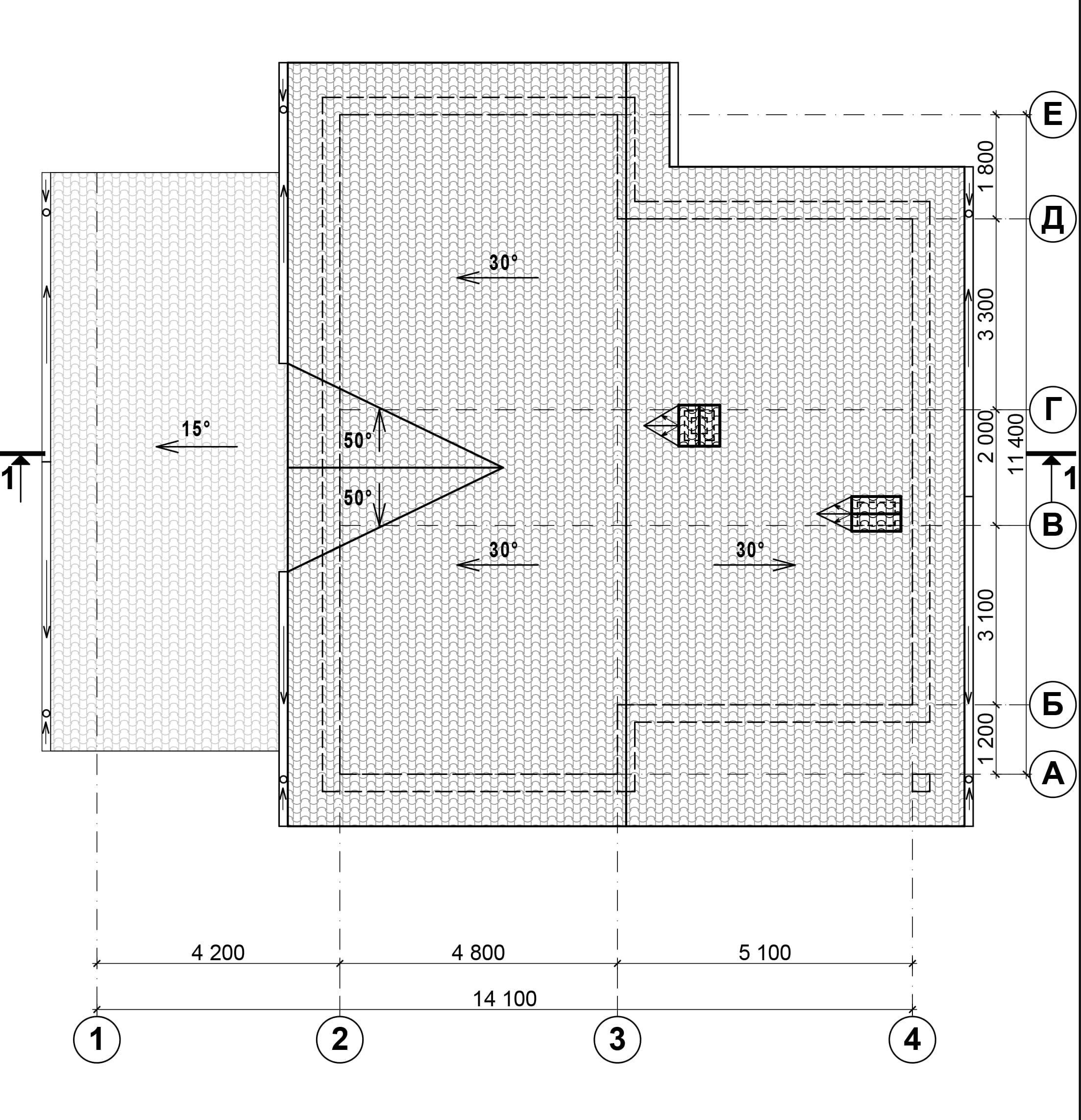
  • Крыша: скатная, покрытая мягкой черепицей
  • Окна: ПВХ профили, двухкамерные стеклопакеты
  • Отопление: автономное, газовый котел
  • Водоснабжение: из скважины
  • Канализация: автономная, септик с системой биологической очистки
  • Планировка:
    • 1 этаж: гостиная, кухня, столовая, холл, санузел, гараж, теплогенераторная, терраса
    • 2 этаж: три спальни, ванная, детская, холл, постирочная, балкон

Проект «Новые горизонты №9» – это просторный и функциональный дом, созданный для комфортного проживания семьи. Гараж на первом этаже делает его еще более удобным, а просторные комнаты обеспечивают уют и комфорт.

Надежность и качество
Дом построен с использованием современных технологий – деревянный каркас с утеплением и облицовкой фасадными панелями. Это обеспечивает высокую тепло- и шумоизоляцию, долговечность и устойчивость к погодным условиям.

Простор и комфорт
Двухэтажная планировка предусматривает четкое зонирование пространства: - Первый этаж включает гостиную, кухню, столовую, холл, санузел, гараж и теплогенераторную. - На втором этаже расположены три спальни, детская, холл, ванная, постирочная и балкон.

Инженерные системы

  • Отопление и горячее водоснабжение обеспечиваются автономным газовым котлом.
  • Водоснабжение поступает из индивидуальной скважины.
  • Канализация – автономный септик с системой биологической очистки.
  • Электроснабжение осуществляется от поселковой электросети.
  • Приточно-вытяжная вентиляция поддерживает комфортный микроклимат.

Энергоэффективность и безопасность
Дом оснащен современными двухкамерными стеклопакетами, утепленной входной дверью и надежной крышей. Эти решения помогают минимизировать теплопотери и снизить затраты на отопление.

Благоустройство и участок
По периметру здания предусмотрена отмостка шириной 1 м, а также возможность озеленения участка по желанию заказчика.

Гибкость проекта
Мы готовы адаптировать проект под ваши индивидуальные пожелания. Наши специалисты помогут скорректировать планировку, добавить инженерные решения и подобрать материалы.

Хотите узнать больше?
Свяжитесь с нами по телефону +7 (910) 108-90-98 или напишите на rsc-horizont@yandex.ru. Мы имеем многолетний опыт в строительстве кирпичных домов и готовы воплотить вашу мечту о комфортном жилье!

Вас также могут заинтересовать...

Проект компактного кирпичного жилого дома «УЮТ»
  Материал: Кирпич
  Площадь: 120,68 м2
от 5792640 руб.
Подробнее →
Проект кирпичного дома «Новые горизонты №5»
  Материал: Кирпич
  Площадь: 169,60 м2
от 8140800 руб.
Подробнее →
Проект кирпичного дома «Новые горизонты №11»
  Материал: Кирпич
  Площадь: 154,3 м2
от 7406400 руб.
Подробнее →
Проект кирпичного дома «Новые горизонты №10»
  Материал: Кирпич
  Площадь: 177,52 м2
от 8520960 руб.
Подробнее →

Оставьте заявку прямо сейчас
и получите бесплатную консультацию!

Оставьте контактные данные и наж менеджер свяжется с вами в течение 5-ти минут!

  Прикрепите фотографии или файлы, если это необходимо

От подачи заявки до готового дома в 4 этапа

01
Оставляете заявку

На сайте или по номеру телефона

02
Назначаем встречу

На которой обсуждаем все ваши пожелания

03
Проектируем

Готовим для вас смету, предложение по цене

04
Заключаем договор

И приступаем к реализации проекта