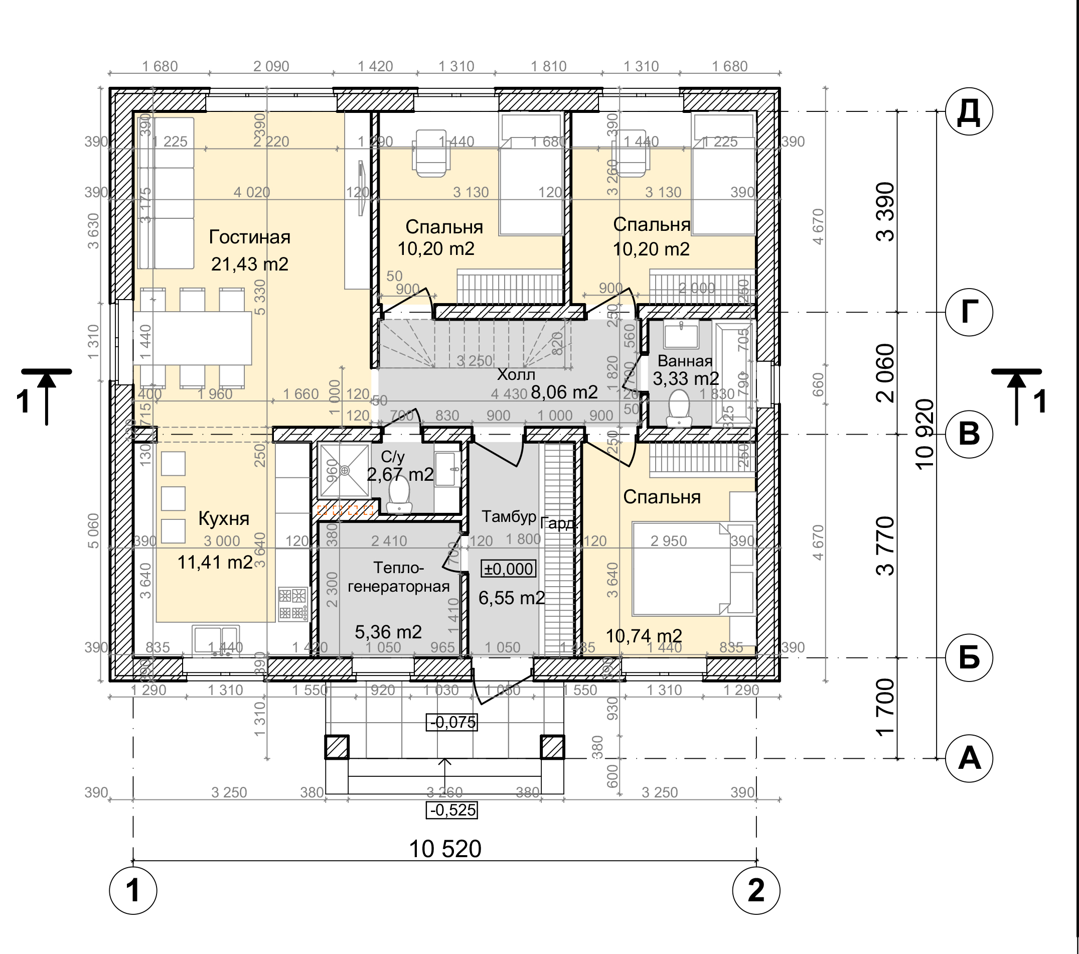
Проект «УЮТ» — это индивидуальный одноэтажный дом площадью 96,99 м² с удобной планировкой, современными инженерными решениями и надежной конструкцией.
Площадь застройки: 120,68 м²
Общая площадь здания: 96,99 м²
Общая площадь помещений (без крыльца): 89,95 м²
Жилая площадь: 52,57 м²
Строительный объем: 515 м³
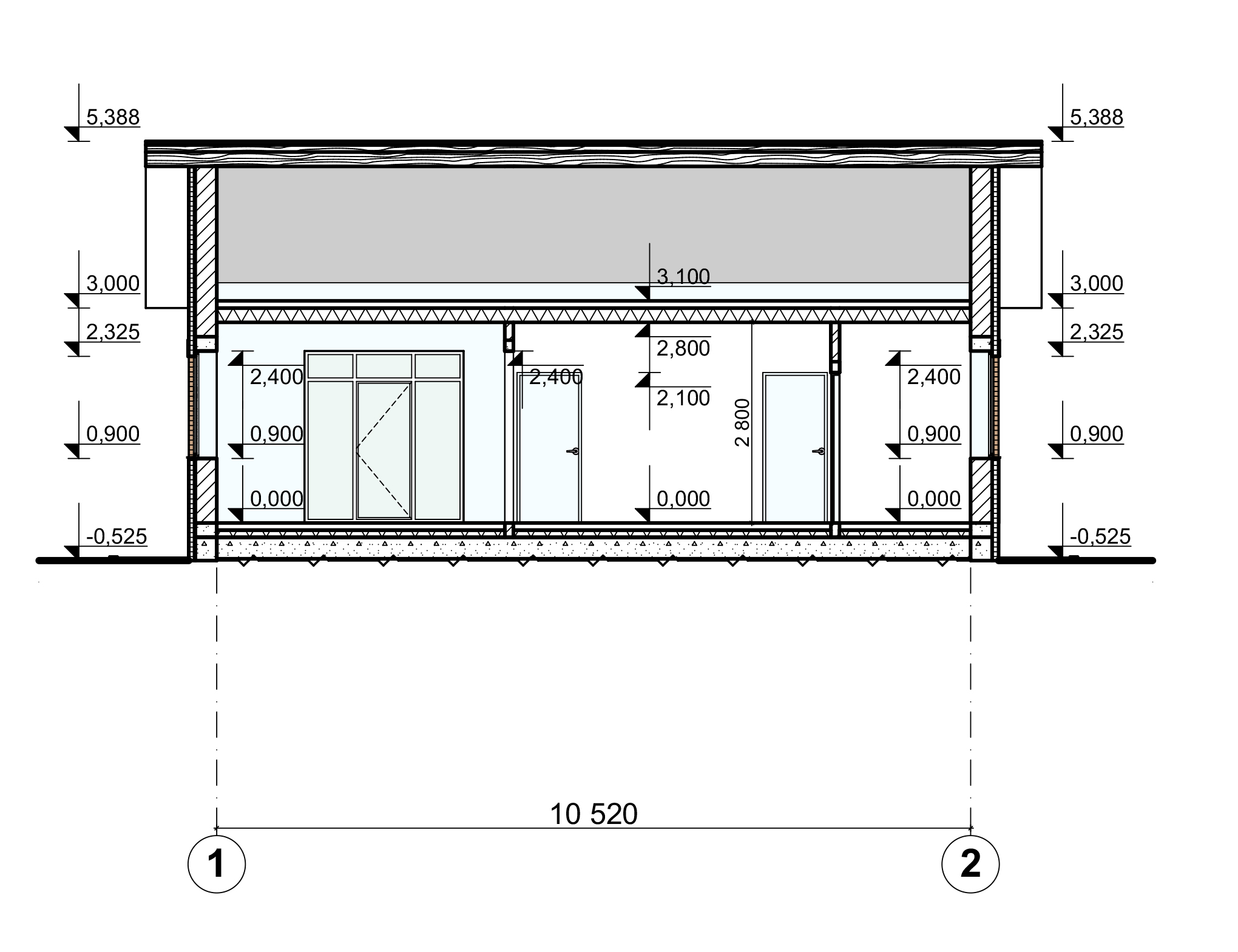
Высота помещений: 2,80 м (первый этаж)
Материалы стен:
- Наружные стены — керамический блок KAIMAN толщиной 300 мм с облицовкой керамическим кирпичом и вентиляционным зазором.
- Внутренние стены — керамический кирпич толщиной 250 мм.
- Перегородки — керамический кирпич толщиной 120 мм.
Конструкция крыши: скатная, деревянные стропила, мягкая черепица.
Окна: ПВХ REHAU Blitz с двухкамерными стеклопакетами.
Дверь: входная металлическая утепленная.
Инженерные системы:
- Отопление — автономное, газовый котел в теплогенераторной.
- Водоснабжение — индивидуальное по проекту.
- Канализация — автономная по проекту.
- Вентиляция — приточно-вытяжная с естественным побуждением.
- Электроснабжение — по проекту.
Планировка:
1 этаж: гостиная, кухня, холл, санузел, спальни, теплогенераторная, гардероб.










